Property Description
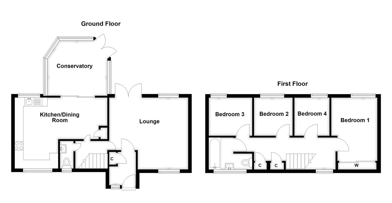
** GUIDE PRICE £475,000 - £500,000 ** Offered with NO ONWARD CHAIN is this FOUR BEDROOM DETACHED HOUSE within close proximity to AMENITIES, POPULAR SCHOOLS and Zone 6 STATION with LINKS to ABBEY WOOD STATION for the ELIZABETH LINE. Your earliest viewing comes recommended.
- No onward chain
- 4 bedroom detached house
- Off road parking
- Conservatory
- Upstairs bathroom
- Downstairs WC
