Property Description
Guide Price - £375,000 - £400,000
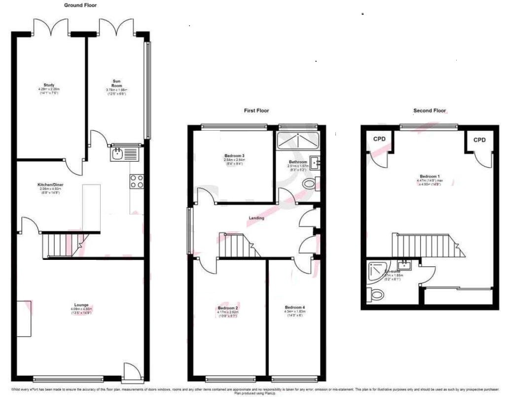
Robinson Michael & Jackson are delighted to present this beautifully presented four-bedroom end-of-terrace home located in the sought-after Burlington Gardens. Offering an impressive 1356 sq ft of stylish and versatile living space, this property is ideal for growing families and those who love to entertain.
Upon entering, you are welcomed by a thoughtfully designed interior, with tasteful décor and quality finishes throughout. The modern, well-appointed kitchen is perfect for both everyday cooking and hosting, featuring ample workspace and contemporary fittings. The generous living areas flow seamlessly into a unique bar area that opens directly onto the garden – the ideal spot for relaxing or social gatherings.
The property boasts four spacious double bedrooms, including a stunning master suite with soaring ceilings, Velux windows that flood the room with natural light, and a sleek en-suite bathroom. Each room offers comfort, space, and style in equal measure.
Externally, the home benefits from gated parking to the rear, along with ample on-street parking for added convenience. Situated within walking distance to excellent local schools, shops, and amenities, and offering superb access to London via the M2, the location is both family-friendly and commuter-friendly.
This is a rare opportunity to own a beautifully finished home in a prime location. Early viewing is highly recommended!
- 1356 sq ft of beautifully presented living space
- 4 spacious double bedrooms, perfect for families or guests
- Bright and airy master bedroom with high ceilings, Velux windows & stylish ensuite
- Modern, well-appointed kitchen with quality fittings – ideal for cooking & entertaining
- Thoughtfully designed interior with elegant décor throughout
- Bar area opening onto the garden – perfect for relaxing or entertaining
- Generous living areas offering great space and flexibility
- Walking distance to excellent local schools, shops & amenities
- Excellent transport links to London via the M2
- Gated rear parking with additional on-street parking available
Rooms
Porch 1.14m x 0.91mDouble glazed door to side. Double glazed window to front. Carpet.
Living Room 4.5m x 4.14mDouble glazed window to front. Radiator. Electric fire with fitted surround. Laminate flooring.
Bar Area 4.37m x 2.2mDouble glazed window to rear. Radiator. Laminate flooring.
Sun room 3.76m x 1.96mDouble glazed window to rear. Radiator. Tiled flooring.
Kitchen/Family Room 4.62m x 4.5mDouble glazed window to rear. Range of wall and base units with worksurface over. Island with fitted storage. Fitted oven with gas hob. Sink unit. Space for white goods. Radiator. Laminate flooring.
Bedroom One 5.2m x 4.5mDouble glazed window to front. Double glazed velux window to rear. Eves storage. Fitted wardrobes. Radiator. Carpet.
Ensuite Shower Room 1.75m x 1.57mLow level WC. Vanity wash hand basin. Enclosed shower. Radiator. Tiled flooring.
Bedroom Two 4.1m x 2.62mDouble glazed window to front. Radiator. Laminate flooring.
Bedroom Three 4.11m x 1.75mDouble glazed window to front. Radiator. Carpet.
Bedroom Four 2.84m x 2.5mDouble glazed window to rear. Fitted storage cupboard. Radiator. Carpet.
Bathroom 2.46m x 1.55mDouble glazed window to rear. Low level WC. Vanity wash hand basin. Heated towel rail. Panelled bath with shower over.
Garden Corner Plot Gardenpatio garden. Fenced in. Outside tap. Outdoor storage shed.
ParkingGated driveway to rear.
