Property Description
**Guide Price £475,000 to £500,000**
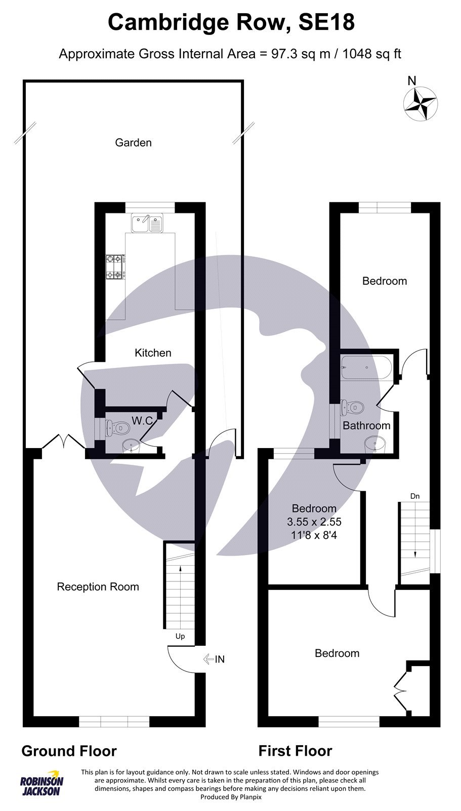
A spacious and well presented period style three bedroom end of terrace family home. Well located for schools, amenities and for access into Woolwich for Mainline Station, Elizabeth Line and DLR.
- 23ft Living/Dining Room
- 17ft Kitchen/Breakfast Room
- First Floor Bathroom
- Ground Floor WC
- Three Double Bedrooms
- No Chain
Rooms
Living Room/Dining Room 7.26m x 4.47mWooden flooring, stairs to first floor, double glazed bay window, doors to garden.
Kitchen/Breakfast Room 5.23m x 2.5mRange of wall and base units with complimentary work surfacesd over, built in electric oven and gas hob with filter hood over, integral washing machine, space for integral dishwasher, double glazed window, door to garden.
Ground Floor WCLow level WC, wash hand basin, tiled floor and walls.
LandingCarpet, double glazed window, access to loft.
Bedroom 1 4.3m x 3.58mCarpet, double glazed window.
Bedroom 2 3.73m x 2.46mLinoleum flooring, double glazed window.
Bedroom 3 3.4m x 2.7mDouble glazed window.
BathroomLow level WC, panelled bath, vanity wash hand basin, towel rail, tiled floor and walls.
