Property Description
Discover this stunning three-bedroom semi-detached home in the exclusive Castle Reach View, a private development of just 12 houses overlooking the River Medway in the sought-after village of Upnor. Located three miles from Rochester and 30 miles from London, this home blends modern elegance with historic charm.
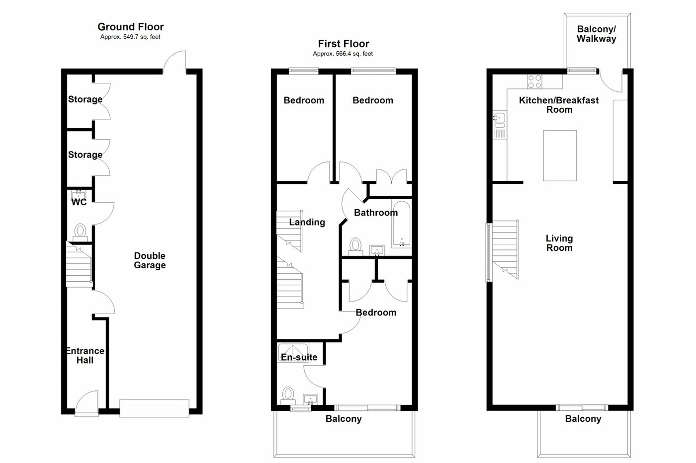
Arranged over three floors, it features a bright open-plan living kitchen with a striking vaulted ceiling, perfect for family life or entertaining. The landscaped garden with a hot tub and access to private communal grounds offers a serene escape. A huge tandem garage provides potential for conversion into extra rooms, while a downstairs cloakroom adds convenience.
With TBC square feet of versatile space, this rare gem near Upnor Castle and local amenities like the sailing club is a perfect blend of tranquility and connectivity. Arrange your viewing today!
- 1682 Square Feet
- Stunning Private Development of 12 Houses overlooking the River Medway
- Popular Village of Upnor
- Arranged Over Three Floors
- Huge Tandem Garage with Potential to Convert to Multiple Reception Rooms or Bedrooms
- Landscaped Garden with Hot Tub and Access to Private Communal Grounds
- Downstairs Cloakroom
- Open Plan Living Kitchen with Vaulted Ceiling
Rooms
Entrance HallDouble glazed door to front. Stairs to first floor. Carpet.
Garage (tandem) 11.58m x 3.45mLight and power. Three storage cupboards. Carpet.
Downstairs CloakroomLow level WC. Wall mounted sink.
First Floor LandingStairs to second floor. Radiator. Carpet.
Bedroom One 4.88m x 2.97mDouble glazed doors to balcony. Fitted wardrobes. Radiator. Carpet.
Ensuite 2.4m x 1.5mDouble glazed window to front. Low level WC. Pedestal hand wash basin. Shower cubicle. Heated towel rail. Part tiled walls and floor.
Bedroom Two 3.6m x 2.6mDouble glazed window to rear. Fitted wardrobes. Radiator. Carpet.
Bedroom Three 3.6m x 1.88mDouble glazed window to rear. Radiator. Carpet.
Bathroom 2.4m x 1.96mLow level WC. Pedestal hand wash basin. Panelled bath with shower over. Heated towel rail. Part tiled walls and floor.
Second Floor LandingDouble glazed window to side. Carpet.
Living Area 7.62m x 4.57mDouble glazed window and door to front. Vaulted ceiling. Radiator. Carpet.
Kitchen/Diner 4.57m x 3.56mDouble glazed window and door to rear. Range of wall and base units with quartz worktops over. Fitted oven, hob and microwave. Integrated dishwasher and washing machine. Laminate floor.
Rear Garden 7.62mLandscaped garden. Decked area. Patio area. Covered area with hot tub. Stairs to upper communal garden area.
DrivewayTo front of tandem garage.
