Property Description
GUIDE PRICE £700,000-£800,000
OFFERED WITH THE BENEFIT OF NO FORWARD CHAIN.
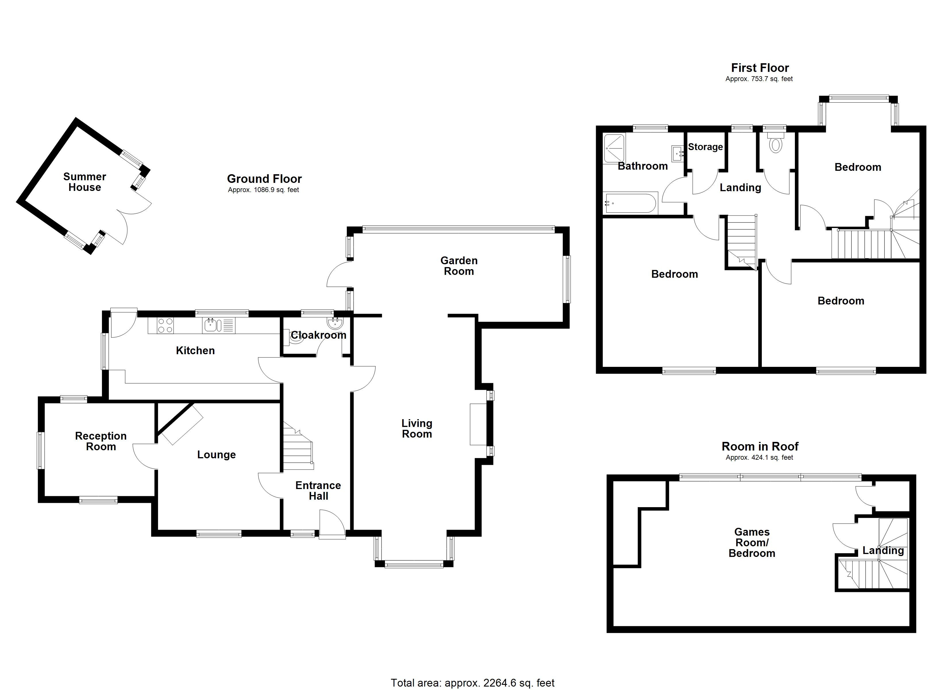
Rarely available on one of Higham’s most exclusive and sought-after roads, this impressive detached property on Copperfield Crescent offers a truly exceptional opportunity for discerning buyers. Boasting an expansive and versatile layout across three floors, this substantial home is set within a generous plot and provides the perfect canvas for modernisation and personalisation.
On the ground floor, the home welcomes you with a spacious entrance hall that immediately sets the tone for the property's scale and potential. To the left, a formal dining room offers a cosy and inviting living space, while a separate reception room, ideal for a home office, playroom, or snug, adds valuable flexibility for modern family life. The heart of the home is a generously sized living room, which enjoys a seamless flow into the garden room — perfect for entertaining or relaxing while enjoying views of the garden. The separate kitchen is well-proportioned and offers access to the rear garden, providing scope to create a stunning open-plan kitchen-diner if desired (subject to planning permissions).
The first floor offers excellent family accommodation, comprising three large double bedrooms, all served by a well-appointed family bathroom. Ample storage is available from the first-floor landing, adding practicality to this already well-thought-out layout.
The second floor further enhances the versatility of this property, featuring a large master bedroom currently utilised as a snooker room. This impressive space benefits from stunning far-reaching views across open fields, creating a serene and picturesque backdrop rarely found in residential settings. The size and positioning of the room make it ideal for conversion into a luxurious principal suite with en-suite facilities and dressing room, offering a true retreat within the home.
Externally, the property benefits from a sizeable rear garden with a detached summer house, offering yet another fantastic space for hobbies, home working, or additional leisure activities. The front of the property provides generous driveway parking for multiple vehicles, in keeping with the prestige of the road.
Copperfield Crescent is widely regarded as one of Higham’s finest addresses, known for its peaceful surroundings, generous plot sizes, and strong community feel. Higham itself is a charming village offering a selection of local shops, pubs, and schools, as well as excellent transport links into London via Higham railway station and easy access to the A2 and M2 motorways. Surrounded by countryside and with riverside walks nearby, the area offers a perfect blend of rural tranquillity and commuter convenience.
Properties of this calibre in such a prestigious setting are rarely available — early viewing is highly recommended to fully appreciate all that this exceptional home has to offer.
- Exclusive Private Road
- Stunning Views
- Great Potential
- Good Sized Garden
- Multiple Reception Rooms
- Huge Master Bedroom
Rooms
Ground Floor WC 2.03m x 1.3mDouble glazed frosted window to rear. Tiled floor. Partially tiled walls. Radiator. WC. Wash hand basin.
Lounge 7.65m x 4.11mDouble glazed bay window to front. 2 x Double glazed fosted windows to side. Radiator. Carpet. Gas fire. Double glazed sliding doors to reception 3.
Dining Room 4.01m x 3.94mDouble glazed window to front. Radiator. Carpet. Electric fire.
Reception Room 3 6.38m x 2.7m4 x Double glazed windows to rear. 1 x Double glazed window to side. Double glazed door to side. Carpet. Radiator.
Office 3.7m x 3.07mDouble glazed window to front, side and rear. Radiator.
Kitchen 5.38m x 2.67mDouble glazed window to rear and side. Double glazed door to garden. Built in fridge/ freezer, oven, grill and hob. Cupboard housing boiler. Wall and base cupboards with worksurfaces over.
Landing 3.23m x 2.7mDouble glazed window to rear. Carpet.
Master Bedroom 9.37m x 4.5mSecond floor. 4 x Double glazed windows to front. Radiator. Carpet. Eave storage.
2nd Bedroom 4.7m x 4.67mFirst floor. Double glazed window to front. Carpet. Radiator. Built in wardrobe.
3rd Bedroom 4.14m x 3.1mFirst floor. Double glazed window to front. Radiator. Built in wardrobe. Carpet.
4th Bedroom 4.01m x 3.66mFirst floor. Double glazed bay window to front. Radiator. Carpet. Door to walk in wardrobe.
Walk-In Wardrobe 1.63m x1.24mCarpet.
Bathroom 2.64m x 2.5mDouble glazed frosted window to rear. Radiator. Heated towel rail. Wash hand basin. Panelled bath. Independent shower cubicle.
Separate WC 1.6m x 1.07mDouble glazed frosted window to rear. Tiled floor. Low level WC.
