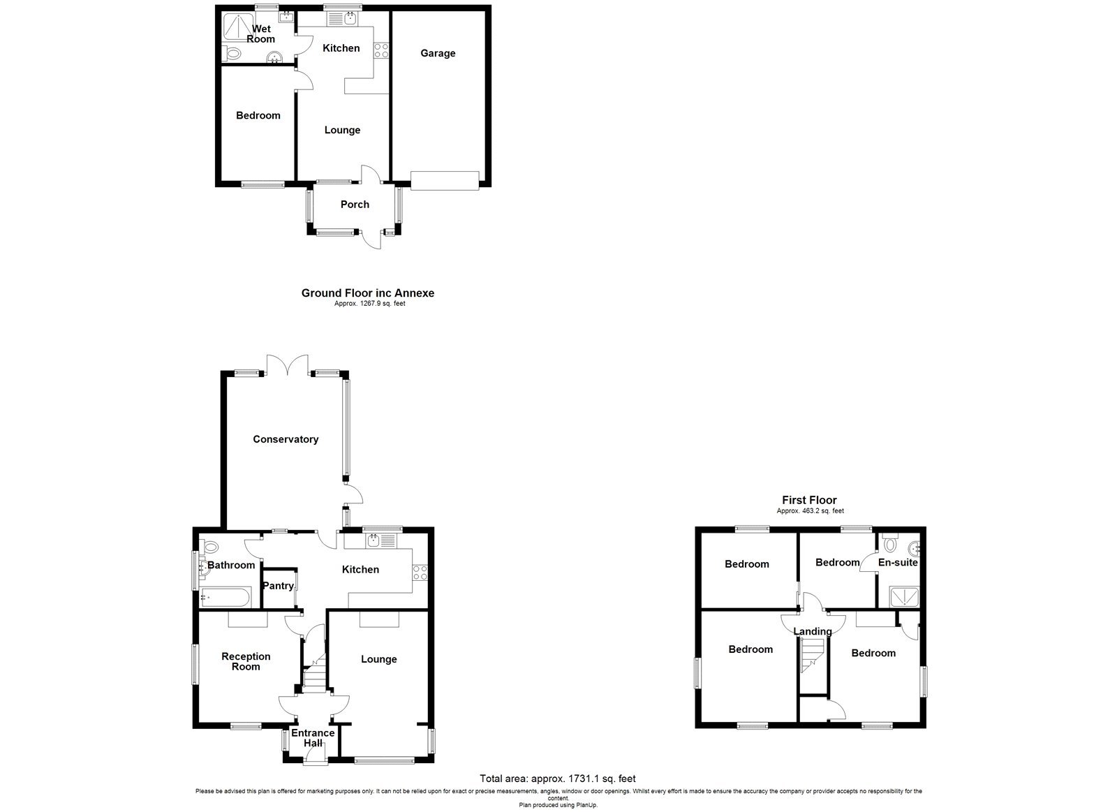
Property Description
GUIDE PRICE £625000-£650000, Situated on the outskirts of Higham village and within WALKING DISTANCE of HIGHAM BR STATION is this THREE/FOUR BEDROOM DETACHED PERIOD HOUSE with GATED OWN DRIVEWAY to front for TWO CARS. The property also features a DETACHED ONE BEDROOM WHEELCHAIR FRIENDLY ANNEX to the rear with INTEGRAL GARAGE and REMOTE GATES to side. The main house accommodation comprises ENTRANCE HALL, TWO SEPARATE RECEPTION ROOMS with FEATURE FIREPLACES, MODERN FITTED KITCHEN, GROUND FLOOR BATHROOM and 16' X 12' DOUBLE GLAZED CONSERVATORY to rear. On the first floor are TWO DOUBLE BEDROOMS and an OFFICE/BEDROOM with the THIRD BEDROOM to one side and an EN-SUITE SHOWER ROOM to the other. Externally is a WELL CARED FOR APPROX 100' LANDSCAPED REAR GARDEN with PAVED PATIO and ARTIFICIAL GRASS AREAS. This also gives access to the ANNEX which currently has approval for occupation by family or friends only. If you did wish to let the annex then separate planning permission would need to be applied for. CALL US NOW TO VIEW. HIGHLY RECOMMENDED.
- Two Reception Rooms
- Modern Fitted Kitchen
- D/G Conservatory
- Ground Floor Bathroom
- First Floor Shower Room
- Detached Self Contained Annexe and Garage
- Approx 100' Landscaped Rear Garden
- Own Driveway to Front
- Further Parking to Rear
- CCTV & Water Softener
- Walk to Higham Station and Schools
- Viewing Recommended
Rooms
HallwayGeorgian style double glazed entrance door. Laminate floor. Radiator.
Lounge 4.9m x 3mGeorgian style double glazed bay window to front. Laminate floor. Radiator. Feature fireplace with inset log burner.
Dining Room 3.56m x 3mGeorgian style double glazed window to rear. Georgian style double glazed window to side. Laminate floor. Feature brick fireplace and chimney. Coved ceiling.
Kitchen 3.94m x 2.4mDouble glazed window to rear. Modern fitted wall and base units with wooden work surfaces. Single drainer sink and drainer unit. Built in double oven. Built in bin. Inset wine rack. Built in under cupboard. Space for appliances. Double glazed door to garden.
Conservatory 4.88m x 3.7mDouble glazed window to side. Double glazed window to rear. Double glazed doors to garden. Tiled floor. Radiator. 2 x skylight windows. Wooden worktops.
LobbyTiled floor. Door to ground floor bathroom.
GF Bathroom 2.18m x 1.65mGeorgian style double glazed frosted window. Modern fitted suite comprising of panelled bath, vanity wash hand basin unit and low level W/C. Tiled walls. Tiled floor. Heated towel rail. Coved ceiling. Spotlights.
LandingCarpet.
Master Bedroom 3.56m x 3.02mGeorgian style double glazed window to front. Georgian Style double glazed window to side. Carpet. Radiator.
2nd Bedroom 3.02m x 3.25mGeorgian style double glazed window to front. Georgian Style double glazed window to side. Carpet. Radiator. Built in storage cupboard. Built in landing cupboard.
4th Bedroom/Office 2.5m x 2.4mGeorgian style double glazed window to rear. Carpet. Radiator. Door to bedroom 3. Door to Shower Room
3rd Bedroom 2.6m x 2.24mGeorgian style double glazed window to rear. Carpet. Radiator.
En-Suite Shower Room 2.36m x 1.32mTiled shower cubicle. Panelled wash hand basin. Low level W/C. Tiled floor.
