Property Description
GUIDE PRICE £400,000-£425,000
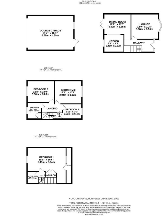
Located along the popular Coulton Avenue in Gravesend, this well-presented four-bedroom mid-terrace property offers versatile and spacious accommodation arranged over three floors, making it an ideal choice for growing families or buyers seeking flexible living space.
The ground floor comprises a welcoming entrance hallway leading through to a well-proportioned lounge positioned to the front of the property. To the rear sits a separate dining room, providing an ideal space for family meals and entertaining, with easy access to the fitted kitchen. The layout flows well and offers clear separation between living and dining areas.
The first floor hosts three bedrooms, including two generous doubles and a further well-sized single, all served by a family bathroom accessed from the central landing. The second floor is dedicated to an impressive principal bedroom, offering excellent proportions along with a shower room and wardrobe space, creating a comfortable and private top-floor retreat.
Externally, the property benefits from a garage located to the rear, providing secure parking or additional storage. The home is presented in good condition throughout and offers spacious accommodation rarely found in similar properties.
- Four-bedroom mid-terrace property
- Arranged over three floors
- Spacious lounge and separate dining room
- Large top-floor principal bedroom with shower room
- Double garage located to the rear
- Well maintained throughout
Rooms
HallwayWood floor. Radiator.
Lounge 3.89m x 3.56mDouble glazed bay window to front. Radiator. Wood floor.
Dining Room 3.76m x 3.56mDouble glazed door to rear. Wood floor. Radiator.
Kitchen 2.82m x 2.51mDouble glazed window to rear. Integrated oven, grill and hob. Sink and drainer unit. Freestanding washing machine, dishwasher and fridge/ freezer. Wall and base level cupboards with worktops over. Wood floor.
Master Bedroom 5.49m x 5.03mDouble glazed window to rear. Double glazed Velux window to front. Laminate floor. Radiator. Eaves.
En-Suite 1.73m x 1.6mDouble glazed frosted window to rear. Vinyl floor. Tiled walls. Low level WC. Wash hand basin. Shower cubicle.
Bedroom 2 3.84m x 3.25mDouble glazed window to front. Radiator. Carpet.
Bedroom 3 3.86m x 3.05mDouble glazed window to rear. Radiator. Carpet.
Bedroom 4 2.72m x 2.4mDouble glazed window to front. Radiator. Carpet.
Bathroom 2.34m x 2.03mDouble glazed frosted window to rear. Tiled floor. 1/2 tiled walls. Radiator. Bath. Built in storage.
