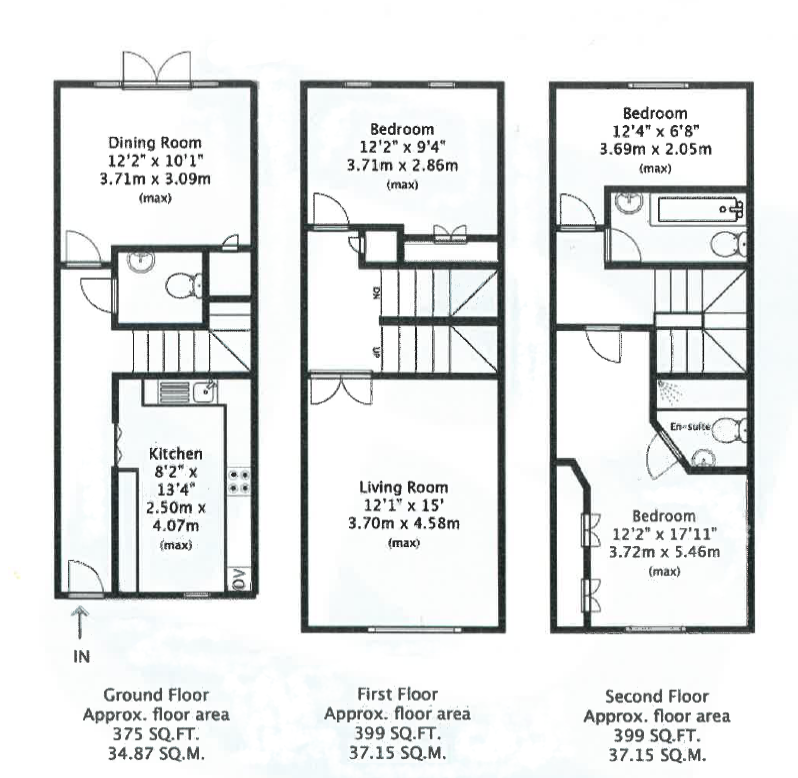
Property Description
This VERY WELL PRESENTED THREE BEDROOM TOWN HOUSE is situated on the popular HERITAGE PARK DEVELOPMENT which is within WALKING DISTANCE of GRAVESEND TOWN CENTRE and MAINLINE TRAIN STATION. The spacious versatile accommodation is set over THREE FLOORS and its as follows. On the GROUND FLOOR you will find an ENTRANCE HALL, CLOAKROOM. MODERN FITTED KITCHEN, RECEPTION ROOM (currently laid out as a bedroom) which leads to the REAR GARDEN. On the FIRST FLOOR is the MAIN LOUNGE/RECEPTION and 1 BEDROOM with stairs leading to the SECOND FLOOR where you will find TWO FURTHER BEDROOMS, the MASTER having its own EN-SUITE SHOWER ROOM and the FAMILY BATHROOM. To the front is OFF ROAD PARKING for 1 car and NUMEROUS VISITOR SPACES. Early viewing STRONGLY RECOMMENDED.
- Total Square Footage: 1175 Sq. Ft.
- No Forward Chain
- Walking Distance to Train Station
- Laid Over Three Floors
- Ground floor Cloakroom
- En-Suite Shower Room
- Versatile Accommodation
- Allocated Parking Space
- Easy Access to Amenities
Rooms
Entrance Hall: 6.53m x 1.07mEntrance door into hallway. Doors to:-
GF W.C.: 1.68m x 1.24mLow level w.c. Vanity wash hand basin with storage under. Tiled flooring.
Lounge: 3.68m x 3.25mDouble glazed French doors to rear. Mirrored radiator. Built-in storage cupboard.
Kitchen: 4.06m x 2.5mDouble glazed window to front. Wall and base units with work surface over and mirrored backsplash. Breakfast bar with seating area. Integrated four ring ceramic hob and extractor hood over. Integrated double oven, wine cooler, fridge freezer and dishwasher. Sink and drainer unit with mixer tap. Radiator. Spotlighting. Tiled flooring.
First Floor Landing: 3.68m x 2.64mRadiator. Built-in cupboard housing boiler. Carpet. Stairs to second floor. Doors to:-
Reception Room: 4.57m x 3.68mDouble glazed window to front. Radiator. Built-in cabinets. Surround TV. Laminate flooring.
Bedroom 2: 3.68m x 2.84mTwo double glazed windows to rear. Radiator. Built-in storage cupboard. Carpet.
Second Floor Landing: 3.68m x 1.55mCarpet. Doors to:-
Bedroom 1: 5.44m x 3.66mDouble glazed window to front. Radiator. Built-in wardrobes. Carpet. Door to:-
En-suite: 1.75m x 1.55mSuite comprising shower cubicle with tiled surround. Vanity wash hand basin. Low level w.c Tiled walls. Tiled flooring. Spotlights.
Bedroom 3: 3.68m x 2.84mTwo double glazed windows to rear. Radiator. Built-in storage cupboard. Carpet.
Bathroom: 2.64m x 1.42mSuite comprising panelled bath with shower over. Wash hand basin with storage under. Low level w.c. Radiator. Loft hatch. Tiled walls. Tiled flooring. Spotlights.
