Property Description
Situated on the ever-popular Cross Lane East, Gravesend, this three bedroom mid terrace house offers generous living accommodation throughout and presents an excellent opportunity for buyers looking for a home they can move into while adding their own style over time. Offered in fair condition throughout, the property provides spacious rooms, a practical layout and a fantastic rear garden with the added bonus of a garage.
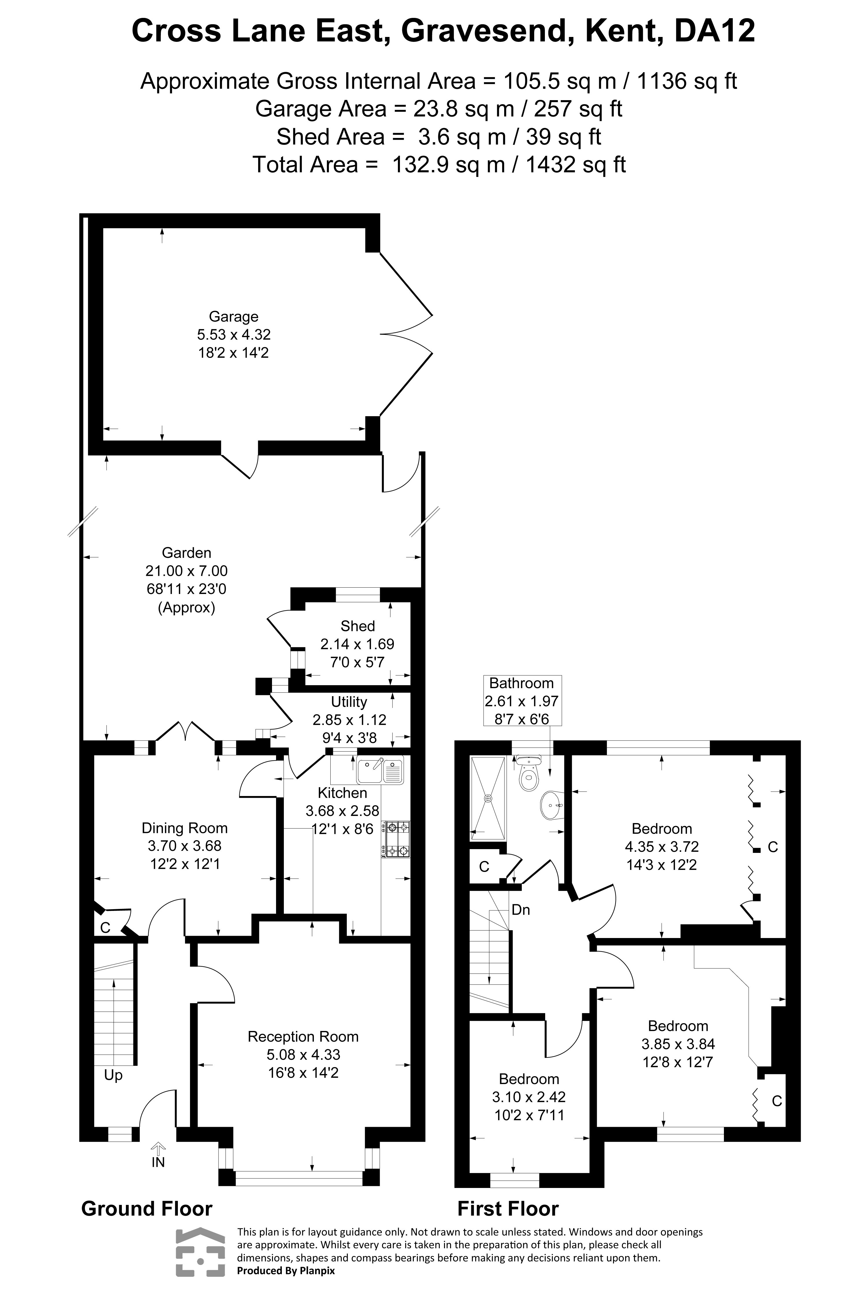
The accommodation begins with an entrance hall leading through to a spacious reception room positioned to the front of the property, featuring a large bay-style window that fills the room with natural light and creates a welcoming main living space. Beyond this, the property opens into a separate dining room, ideal for family meals and entertaining, with direct access through to the rear sections of the house.
To the back of the property is a fitted kitchen, offering a practical range of units and worktop space, alongside a separate utility area that adds useful storage and laundry space. A further shed/store room to the rear provides additional flexibility for storage, hobby use or workshop potential.
Upstairs, the first floor comprises three well-proportioned bedrooms, all of which offer comfortable accommodation for a family, home office setup or guest space. The family bathroom is also located on this level and serves the bedrooms well.
Externally, the home truly benefits from its excellent outside space. The property boasts a substantial rear garden extending to approximately 68ft, providing plenty of room for outdoor seating, family use, gardening and entertaining. To the far rear is a detached garage, a valuable addition that offers secure parking, storage or workshop space.
This is a fantastic opportunity for buyers seeking a spacious family home in a well-connected Gravesend location, with excellent scope to modernise and personalise.
- Three bedroom mid terrace house
- Spacious front reception room
- Separate dining room
- Kitchen with utility area
- Approx. 68ft rear garden
- Detached garage to rear
Rooms
HallwayCarpet Throughout, Radiator
Lounge 5.08mx4.32mDouble Glazed Bay Window to Front, Wooden Flooring, Radiator, Feature Fireplace
Dining Room 3.68mx3.68mDouble Glazed Doors to Garden, Wooden Flooring, Radiator
Kitchen 3.68mx2.6mTiled Flooring, Integrated Sink, Upper and Lower Cabinets
Utility Space 2.84mx1.12mDoor to Rear Garden, Tiled Flooring
First Floor LandingCarpet Throughout
Bedroom One 4.34mx3.7mDouble Glazed Window to Rear, Carpet, Radiator, Built in Wardrobes, Feature Fireplace
Bedroom Two 3.86mx3.84mDouble Glazed Window to Front, Carpet, Radiator, Built in Storage and Desk
Bedroom Three 3.1mx2.41mDouble Glazed Window to Front, Carpet, Radiator
Bathroom 2.62mx1.98mDouble Glazed Frosted Window to Rear, Vinyl Flooring, Radiator, Basin, W.C., Walk in Shower Cubicle
