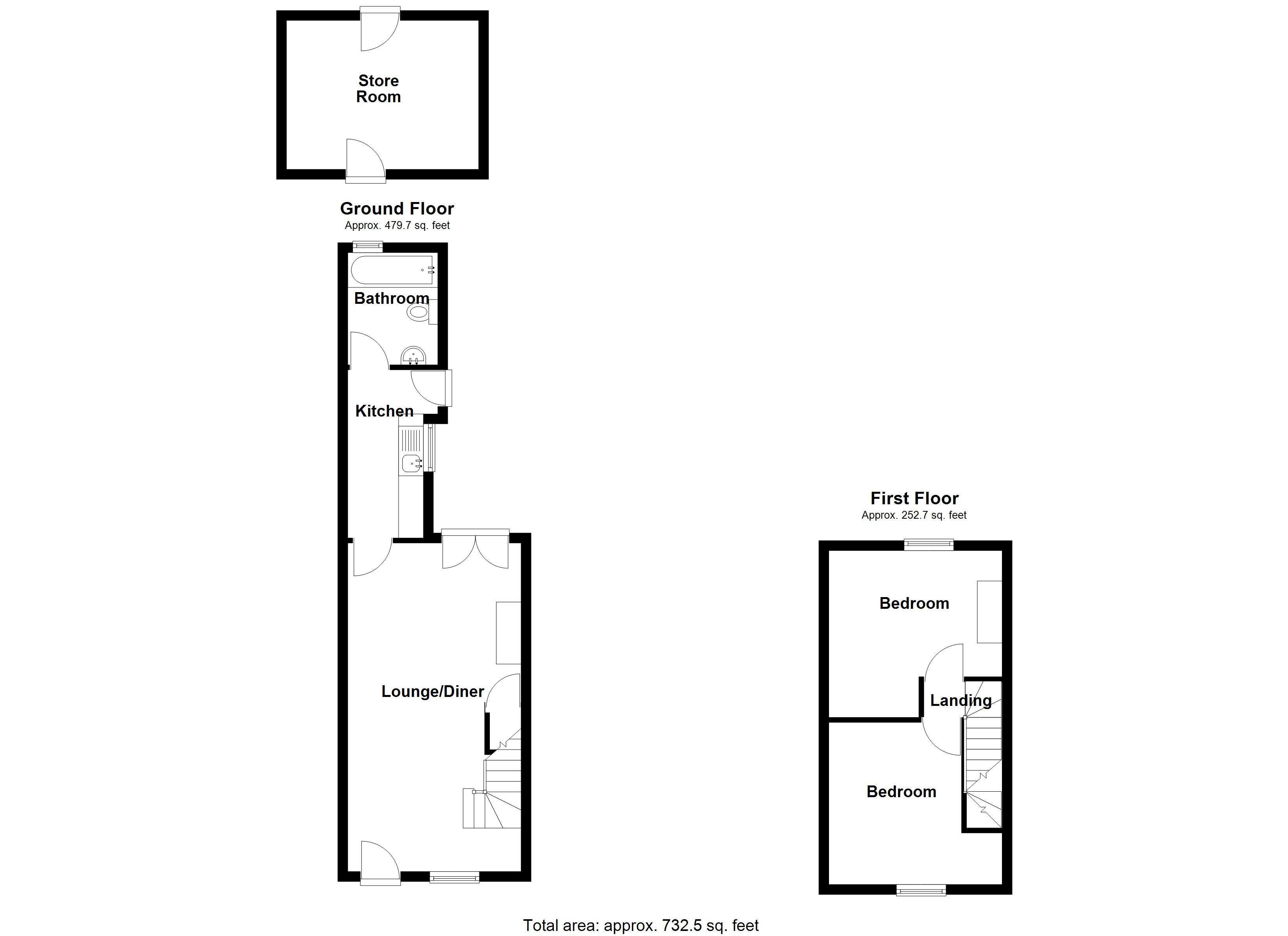
Property Description
Situated along Dover Road within short driving distance of both Ebbsfleet and Northfleet BR Station is this TWO BEDROOM END OF TERRACED HOUSE which is offered with the benefit of NO FORWARD CHAIN. The recently redecorated accommodation comprises 22'3 THROUGH/LOUNGE DINER with trap door access to a CELLAR, GALLEY KITCHEN, GROUND FLOOR BATHROOM and TWO FIRST FLOOR BEDROOMS. To the rear is an approx 30' REAR GARDEN with 12'8 x 9'8 GARAGE/STORAGE UNIT. Call today to view.
- Through Lounge/Diner
- Galley Kitchen
- Ground Floor Bathroom
- Double Glazing
- Gas Central Heating
- Approx 30' Garden
- No Chain Involved
Rooms
Lounge 6.78m x 3.48mEntrance door. Double glazed window to front. Double radiator. Single radiator. Staircase to first floor. Understairs cupboard. Double glazed French doors to garden. Access to cellar under carpet.
Kitchen 3.33m x 1.47mDouble glazed window to side. Base units. Built in oven and extractor fan. Frosted double glazed window to side. Wall mounted boiler. Door to bathroom.
LandingCarpet. Access to loft.
Master Bedroom 3.38m x 3.35m (2.51m)Double glazed window to rear. Carpet. Radiator.
2nd Bedroom 3.28m x 3.48m (2.41m)Double glazed window to rear. Carpet. Radiator.
Bathroom 2.24m x 1.8mFrosted double glazed window to side. Frosted double glazed window to rear. Panelled bath. Panelled wash hand basin. Low level WC. Tiled walls. Radiator.
