Property Description
***Guide Price £400,000 to £425,000***
This charming chain free terraced house boasts three bedrooms and is situated in a convenient location. The property features a low maintenance garden, perfect for enjoying outdoor relaxation and entertaining guests., convenient residents parking and a garage en-bloc provide ample space for vehicles and storage.
The lounge/diner creates a welcoming space for family gatherings and socialising, along with the added benefit of an conservatory. The bedrooms are well-appointed, offering comfortable and private retreats.
Located conveniently for all the local amenities at Nuxley Villlage, schools, and transport links, making it an ideal choice for families or professionals.
Don't miss the opportunity to make this delightful house your new home. Contact us today to arrange a viewing.
- Three bedrooms
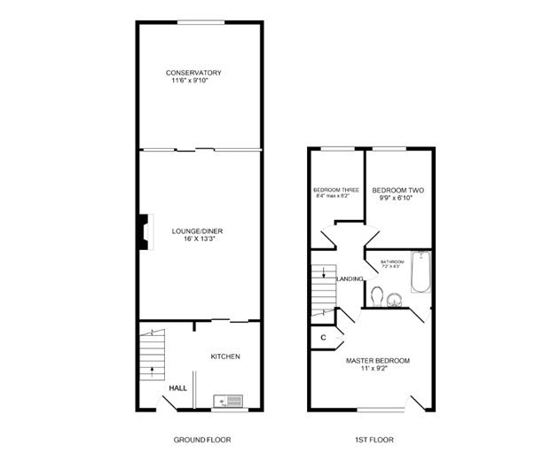
- 16'4 x 13'1 Lounge/Diner
- Conservatory
- First-floor bathroom
- No onward chain
- Garage en-bloc
Rooms
Entrance HallUPVC door to front with frosted pane, radiator, under stairs cupboard, wood laminate flooring,
Kitchen 2.95m x 2.06mDouble glazed window to front, wall and base units with work surfaces above, stainless steel sink and drainer unit with mixer tap, integrated oven and four ring Bosch induction hob, integrated extractor, integrated fridge/freezer and dishwasher, space for washing machine, tiled floor, part tiled walls
Lounge 4.98m x 4mDouble glazed window to rear, double glazed french doors to conservatory, radiator, gas fire with decorative surround
Conservatory 3.48m x 3.1mDouble glazed french doors to rear, double glazed windows to side and rear, vinyl flooring
LandingCarpet, access to loft
Bedroom 1 3.86m x 2.8mDouble glazed window to front, radiator, built in wardrobes, cupboard housing Worcester boiler, wood laminate flooring
Bedroom 2 3.1m x 2.06mDouble glazed window to rear, radiator, wood laminate flooring
Bedroom 3 3.1m x 1.88mDouble glazed window to rear, radiator, built in wardrobe, built in wardrobe
BathroomPanelled bath with bath filler and mixer tap, vanity wash hand basin, concealed cistern WC, heated towel rail, tiled walls and floor, extractor fan
GardenApprox 40'. Decked, shed
GarageEn-bloc with electricity
ParkingResidents parking (not allocated)
