Property Description
**GUIDE PRICE £550,000 - £575,000**
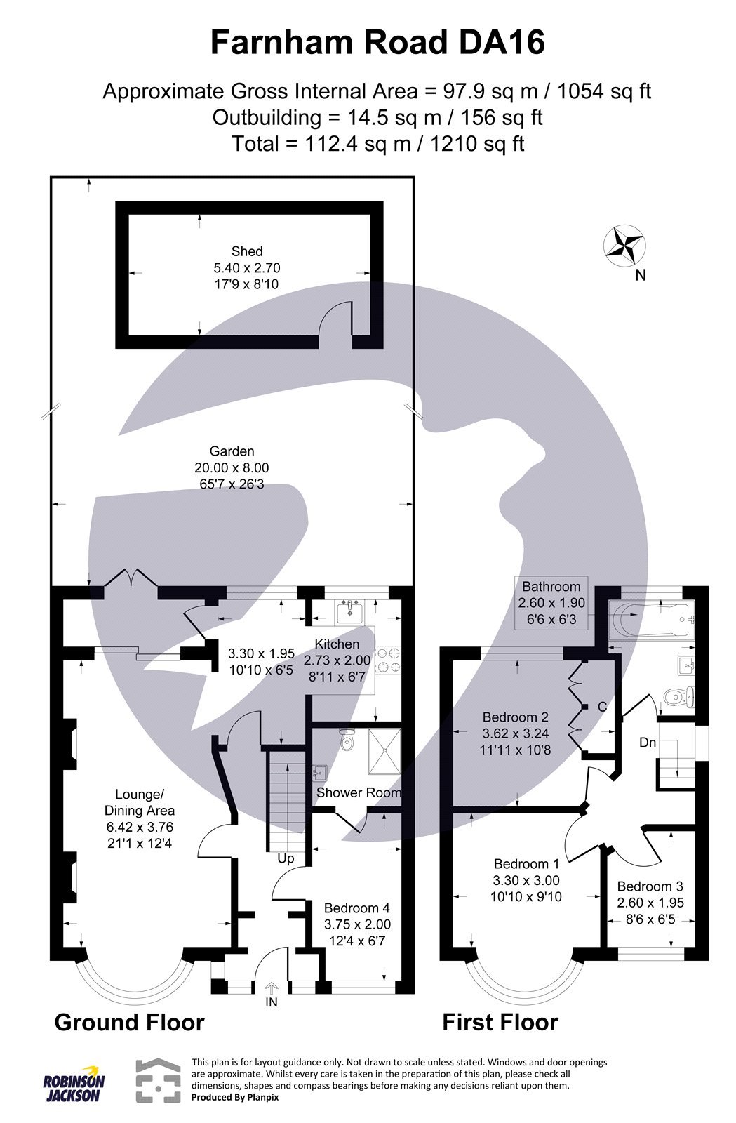
Situated on the sought-after Farnham Road in Welling, this very well-presented four-bedroom semi-detached home offers spacious and versatile accommodation, ideal for modern family living.
To the first floor, the property comprises three well-proportioned bedrooms alongside a family bathroom, all arranged to provide comfortable family accommodation. The ground floor further benefits from an additional bedroom with its own en-suite, providing a convenient and flexible space, perfect for guests, multi-generational living, or for use as a home office.
The property is well maintained throughout and offers a bright and airy feel, allowing buyers to move straight in with minimal work required. The layout provides excellent versatility, catering to a range of lifestyle needs.
Externally, the home features a rear garden, ideal for relaxing and entertaining, with the added benefit of a summerhouse which could be utilised as a home office, gym, or additional leisure space. To the front, there is off-street parking, providing convenient access and practicality for everyday living.
Located in a popular residential area, the property is well positioned for local amenities, schools, and transport links, making it particularly appealing for families. This is an excellent opportunity to acquire a spacious and well-presented home in a desirable location, and early viewing is highly recommended.
- Very well-presented four-bedroom semi-detached house
- Ground floor bedroom with en-suite
- Accommodation ideal for multi-generational living
- Well maintained throughout
- Summerhouse suitable for office, gym or leisure space
- Off-street parking to front
Rooms
Entrance Hall:Double glazed double doors to front.
Lounge/Diner: 6.43m x 3.76mDouble glazed bay window to front, shutter style blinds double glazed French doors to rear and wood flooring. Opening to kitchen.
Kitchen: 3.3m x 1.96m plus 2.72m x 2mFitted with a range of wall and base units with contrasting wood work surfaces. Double glazed windows to rear, shutter style blinds and tiled flooring.
Bedroom 4: 3.76m x 2mDouble glazed window to front and wood flooring. Door to ground floor shower room.
Ground Floor Shower Room:Fitted with a three piece suite comprising of pedestal wash hand basin, low level wc and separate walk in shower cubicle. Tiled walls and tiled flooring.
Landing:Carpet as fitted and wood flooring.
Bedroom 1: 3.3m x 3mDouble glazed bay window to front, shutter style blinds and carpet as fitted.
Bedroom 2: 3.63m x 3.25mDouble glazed window to rear, shutter style blinds, fitted wardrobes and carpet as fitted.
Bedroom 3: 2.6m x 1.96mDouble glazed window to front, shutter style blinds and wood flooring.
Bathroom:Fitted with a three piece suite comprising of vanity wash hand basin, low level wc and panelled bath with shower over and glass shower screen. Tiled walls, tiled flooring and double glazed window to rear.
Garden:Artificial lawn with patio and decked area. Raised flower beds with mature shrubs.
Summer House: 5.4m x 2.7mDouble doors and windows to front.
Parking:Driveway providing off street parking.
