Property Description
OPEN DAY SATURDAY 7TH MARCH BY APPOINTMENT ONLY!
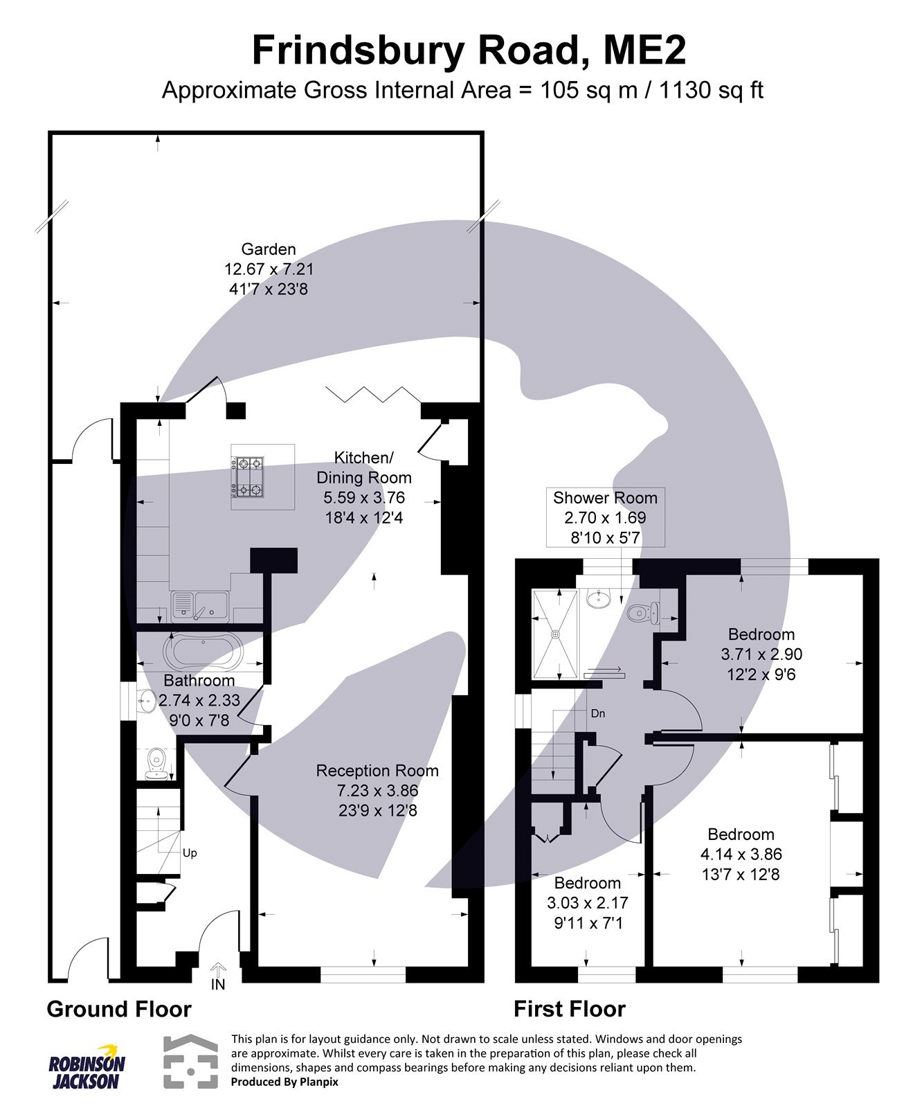
Situated in a highly sought-after location on Frindsbury Hill, this beautifully extended three-bedroom semi-detached home offers approximately 1,130 square feet of stylish and well-designed living space, perfect for modern family life.
Finished to a stunning standard throughout, the property boasts underfloor heating across the ground floor, creating both comfort and a sense of luxury. The lounge is a true focal point of the home, featuring a contemporary media wall that provides a sleek and inviting space to relax.
To the rear, you’ll find an impressive open-plan kitchen and dining area, complete with a central island — ideal for both everyday living and entertaining. The space is further enhanced by bifold doors that flood the room with natural light and seamlessly connect the indoors with the garden.
Upstairs, the home continues to impress with three well-proportioned bedrooms, all presented with the same high level of décor found throughout the property.
Externally, the property benefits from off-street parking and is conveniently located within walking distance of local amenities. Commuters will appreciate the easy access to the A2/M2, making travel straightforward and efficient.
This is a fantastic opportunity to acquire a turnkey home in a desirable area, offering space, style, and convenience in equal measure.
- Sought after location
- Approximately 1130 sqaure feet
- Off street parking
- Underfloor heating on ground floor
- Walking distance to local amenities
- Easy access to A2/M2
- Air conditioning
Rooms
Hall 3.76m x 1.85mTiled flooring, under floor heating, double glazed door , stairs to first floor, wall mounted boiler.
Lounge 7.09m x 3.58mTiled flooring ,under floor heating, radiator, double glazed window to front, media wall, electric fire.
Kitchen 5.6m x 2.57mTiled flooring, wall to base units with roll top work surface over , intergrated stainless steel over, hob with extractor fan, stainless steel mircowave, washing machine, dish washer , fridge freezer, sink drainer with mixer tap, wine cooler, double glazed bi-folding doors leading to rear garden.
Ground floor Shower room 2.26m x 1.9mTiled flooring ,under floor heating, fully tiled walls, free standing bath with mixer tap, double glazed window to side , basin with mixer tap, low level w/c, extractor fan.
LandingCarpet, loft access. wall mounted air conditioning unit
Bedroom One 4.67m x 4.1mLaminate flooring , double glazed window to front, radiator , built in wardrobes.
Bedroom Two 3.89m x 2.97mLaminate flooring , radiator, double glazed window to rear.
Bedroom Three 2.97m x 2.24mLaminate flooring, radiator, double glazed window to front.
Bathroom 2.84m x 1.96mTiled flooring, low level w/c, wall mounted towel rail, basin with mixer tap, fully tiled walls, double glazed window to rear, walk in shower.
Front gardenBlocked paved drive way, EVC point.
Rear gardenPatio area, grass laid to lawn, side access.
