Property Description
A spacious five bedroom, period built house with loft conversion. Conveniently located for local schools, shops, amenities and transport into London.
- Chain Free
- Four Double Bedrooms
- Loft Conversion
- 26ft Through Lounge/Dining Room
- First Floor Bathroom
- 18th Kitchen/Breakfast Room
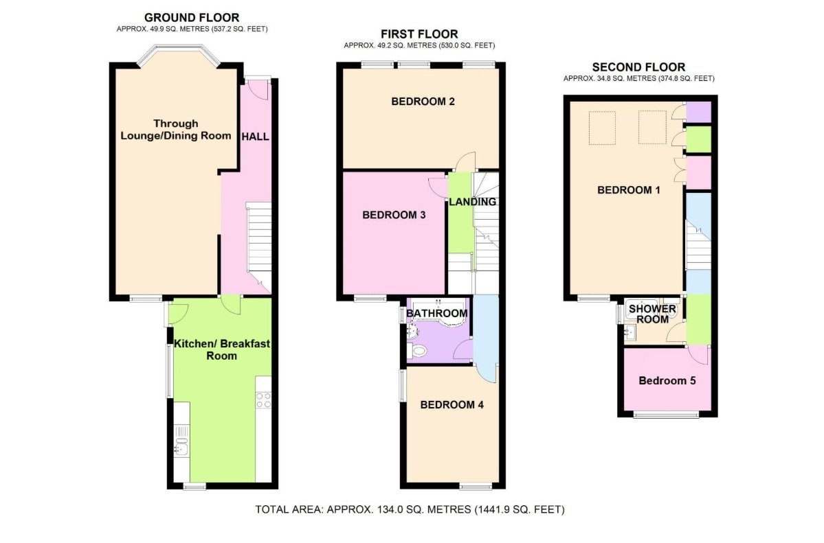
Rooms
Storm Porch Entrance HallStairs to first floor, wooden flooring.
Through Lounge/Dining Room 7.98m x 3.68mDouble glazed bay window to front, double glazed window to rear, wooden flooring.
Kitchen/Breakfast Room 5.64m x 3mFitted with a range of wall and base units with complimentary work surface, integrated stainless steel oven, microwave and stainless steel gas hob with filter hood above, vinyl flooring, double glazed windows to rear and side, double glazed door to garden.
LandingWooden flooring, stairs to second floor.
BathroomA three-piece suit comprising of a panelled bath with shower over, low level WC with enclosed cisterna and wash hand basin, double glazed window to side.
Bedroom Two 4.75m x 3.15mWood style laminate flooring, two double glazed windows to front.
Bedroom Three 3.84m x 3.1mWood style laminate flooring, double glazed window to rear.
Bedroom Four 3.58m x 2.8mWood style laminate flooring, double glazed window to rear and side.
LandingWooden Flooring.
Bedroom One 4.98m x 3.63mWooden flooring, double glazed window to rear, two velux windows to front, built in wardrobes.
Shower RoomA three-piece suit comprising of a walk in shower, low level WC and a vanity wash hand basin.
