Property Description
GUIDE PRICE £300,000-£350,000
This impeccably presented mid-terrace Victorian house has been beautifully styled throughout by the current owner, offering stunning condition and a seamless open-plan layout that flows effortlessly from the kitchen into the dining area.
At the rear, a spacious extension enhances the living space, while to the front, incredible period styling pairs with breathtaking views that make this home a true showstopper for buyers seeking a touch of character.
A second garden provides ample privacy and versatile space for al fresco entertaining, complemented by a triple-width off-road driveway and attached garage for secure parking and practical storage. Unlike many terraced homes where parking is a perennial challenge, this one effortlessly accommodates residents and visitors alike, ensuring plenty of room to host gatherings in style.
Nestled in a semi-rural haven, yet just a short drive from the M20 motorway, it strikes the perfect balance between peaceful countryside living and convenient connectivity.
- Complete chain
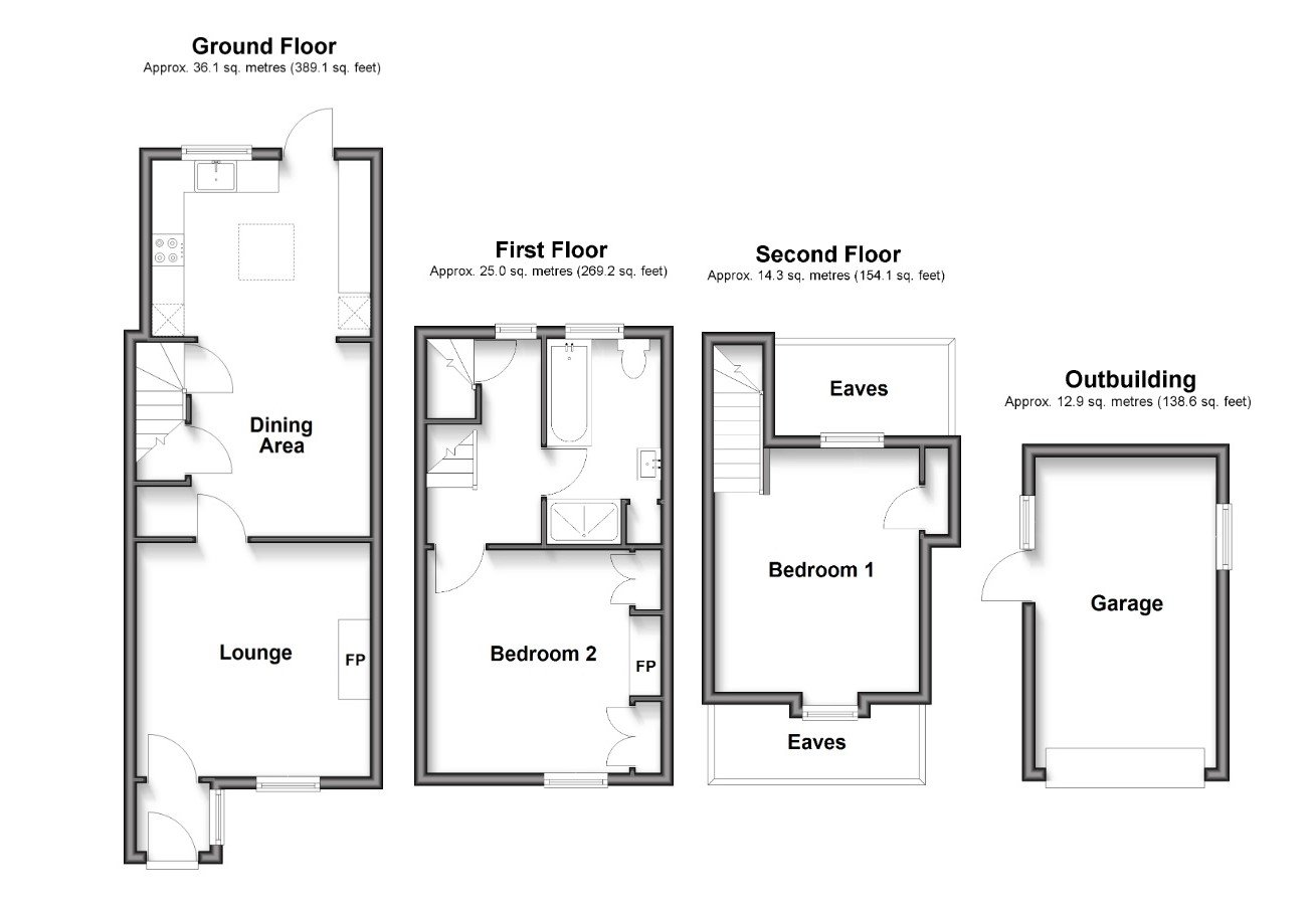
- Two bedroom terraced house
- Situated over three floors
- Triple-width driveway for parking up to three cars.
- Garage
- Breathtaking views
- Second private rear garden
- Peaceful location just minutes from M20 motorway.
Rooms
PorchDoor, window to the side
Lounge 3.63m x 3.6mWindow to the front, fireplace, door
Dining Area 3.02m x 2.8mOpen planned, stairs, understairs cupboard
Kitchen 3.43m x 2.7mWindow to the rear, door leading into the garden, integrated hob & oven, space for white goods
LandingStairs, window to the rear
Bedroom Two 3.45m x 3.33mWindow to the front, door, built in wardrobes, fireplace
Bathroom 3.28m x 1.73mWindow to the rear, walk in shower, bath, basin, heated towel rail
Bedroom One 3.84m x 3.3mWindow to the front and rear, stairs, cupboard
GarageUp and over door, windows to the side
Front Garden Rear Courtyard Garden Separate Private Garden Off Road Parking
