Property Description
**Guide Price: £475,000-£500,000**
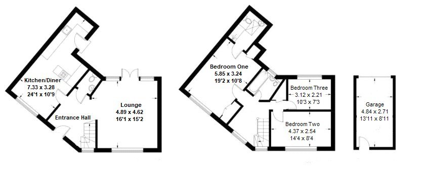
Located in the highly sought-after St. Clements Lake development in Greenhithe, this beautifully presented three-bedroom semi-detached home sits on a large corner plot and offers modern, comfortable living with the added benefit of solar panels. The property boasts a spacious kitchen/diner, two bathrooms, ground floor WC, a low-maintenance garden, garage and driveway. Perfect for families, the home is within easy reach of well-regarded local schools, while Bluewater Shopping Centre is just a short walk away for an abundance of shops, restaurants, and leisure facilities. Excellent transport links include Greenhithe Station nearby, with direct services into London, plus easy access to the A2 and M25. Combining style, convenience, and location, this home is ideal for those seeking both practicality and lifestyle in a popular setting.
- Large Corner Plot
- Three Bedroom Semi-Detached
- Good Sized Family Room/Lounge
- Solar Panels
- Garage & Driveway
- Low Maintenance Garden
- Walking Distance from Bluewater
- Close to Greenhithe Station
- Two Bathrooms & Ground Floor WC
- Popular St. Clements Lake Location
Rooms
Entrance Hall:Double glazed window to front. Under stairs storage cupboard. Tiled flooring. Carpeted stairs to first floor.
Lounge:Double glazed windows to front and rear. Double glazed doors leading to rear garden. Radiator. Bamboo hardwood flooring.
Cloakroom:Frosted double glazed window to rear. Low level WC. Wash hand basin. Heated towel rail. part tiled walls. Tiled flooring.
Kitchen/Dining Room:Double glazed windows to front and rear. Double glazed door leading to rear garden. Two radiators. Range of matching wall and base units with complementary work surfaces over and breakfast bar. Stainless steel sink with drainer. Integrated double electric oven, gas hob and extractor. Integrated fridge freezer. Integrated dishwasher. Spotlights. Tiled flooring.
Bedroom One:Double glazed window to front. Built in wardrobes. Radiator. Bamboo hardwood flooring.
Ensuite:Double glazed skylight. Low level WC. Wash hand basin. Shower cubicle. Heated towel rail. Spotlights. Part tiled walls. Tiled flooring.
Bedroom:Double glazed window to front. Radiator. Bamboo hardwood flooring.
Bedroom:Double glazed window to rear. Radiator. Bamboo hardwood flooring.
Bathroom:Frosted double glazed window to rear. Low level WC. Wash hand basin. Panelled bath with fitted shower and shower screen. Heated towel rail. Spotlights. Part tiled walls. Tiled flooring.
