Property Description
Robinson Jackson are delighted to offer this SHARED OWNERSHIP property (advertised price represents 75% share. Full market value £380,000).
This smartly-presented property forms the southern end of a four-house terrace and has a kitchen with bay window, a naturally-lit cloakroom/WC and a spacious reception/dining room. Patio doors open onto an attractive, sunny and neatly-kept rear garden. On the first floor of the house are two generously-sized bedrooms and a bathroom with marble-style tiles. Well insulated walls, roof and floor, gas central heating and high performance glazing all contribute towards a very good energy-efficiency rating. There is a forecourt parking space and Haygreen Crescent is also within walking distance, or brief cycle ride, of both Swanscombe and Ebbsfleet Railway Stations. Nearby Cherry Orchard Primary School is Ofsted-rated 'Outstanding'. The property is held on a very long lease with the freehold transferred on 100% ownership.
INTERESTED PARTIES ARE REQUIRED TO COMPLETE THE SHARED OWNERSHIP COMMON APPLICATION FORM [ https://tinyurl.com/4m7w8xf4]
(Please note the minimum income and deposit requirements for eligibility. You do not need to request a viewing separately once you have completed the application form.)
Housing Association: Clarion.
Tenure: Leasehold (990 years from 01/04/2021).
Share Available: 75% (£285,000).
Shared Ownership Rent: £266.26 per month (subject to annual review).
Service Charge: £59.55 per month (subject to annual review).
Guideline Minimum Income: Dual - £66,400 | Single - £76,600 (based on minimum share and 10% deposit).
Council Tax: Band D, Dartford Borough Council. Priority is given to applicants living and/or working in this local authority.
This property is offered for sale in the condition seen. The housing association does not warrant to carry out any remedial or redecoration work of a cosmetic nature unless specifically advised in writing. As a general rule, fitted domestic appliances are included in the sale; non-fitted appliances are not. If you require confirmation, you must request this in writing from Urban Moves. The information in this document supersedes any information given verbally either in person or by telephone.
Key Features
Guideline Minimum Deposit £28,500
Guide Min Income Dual £66.4k | Single £76.6k
Two Storey, Two Bedroom, End of Terrace House
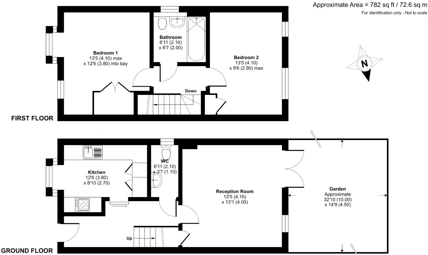
Approx. 782 Sqft Gross internal Area
Bathroom plus Downstairs WC
Very Good Energy Efficiency Rating
Rear Garden
Parking Space
Particulars
Tenure: Leasehold
Lease Length: 986 years
Council Tax Band: D
- Shared Ownership 75% share
- Great for First Time Buyers
- Over 900 years lease
- Off Street Parking
- Integrated Appliances
- Freehold Property
Rooms
Entrance Hall:Carpet. Carpeted stairs to first floor.
Cloakroom: 2.1m x 1.1mFrosted double glazed window to side. Low level WC. Wash hand basin. Radiator. Tiled flooring.
Kitchen: 3.8m x 2.7mDouble glazed box bay window to front. Range of matching wall and base units with complementary work surface over. Stainless steel sink with drainer. Integrated electric oven, gas hob and extractor. Integrated fridge freezer. Tiled flooring.
Lounge: 4.1m x 4mDouble glazed window to rear. Double glazed patio doors leading to rear garden. Radiator. Carpet.
Landing: Bedroom One: 4.1m x 3.8mDouble glazed box bay window to front. Double glazed window to front. Built in storage cupboard. Radiator. Carpet.
Bedroom Two: 4.1m x 2.9mTwo double glazed windows to rear. Built in cupboard. Radiator. Carpet.
Bathroom: 2.1m x 2mFrosted double glazed window to side. Low level WC. Wash hand basin. Panelled bath with fitted shower and shower screen. Part tiled walls. Spotlights. Tiled flooring.
