Property Description
Charming Victorian terraced house boasting 2 bedrooms, ideal for families seeking a characterful home. This period property features a delightful garden, perfect for outdoor enjoyment. Offered with no onward chain, providing a smooth and hassle-free transaction. An excellent investment opportunity for those looking to renovate and add value. Situated within close proximity to the station, making commuting a breeze with convenient access to transport links. Don't miss out on the chance to own this desirable property with great potential. Contact us now to arrange a viewing and secure your dream home!
Charming Victorian terraced house boasting 3 bedrooms, ideal for families seeking a characterful home. This period property features a delightful garden, perfect for outdoor enjoyment. Offered with no onward chain, providing a smooth and hassle-free transaction. An excellent investment opportunity for those looking to renovate and add value. Situated within close proximity to the station, making commuting a breeze with convenient access to transport links. Don't miss out on the chance to own this desirable property with great potential. Contact us now to arrange a viewing and secure your dream home!
- Chain Free
- Investment Property
- Freehold
- Downstairs Bathroom
- Sought after location
- Close to Bluewater
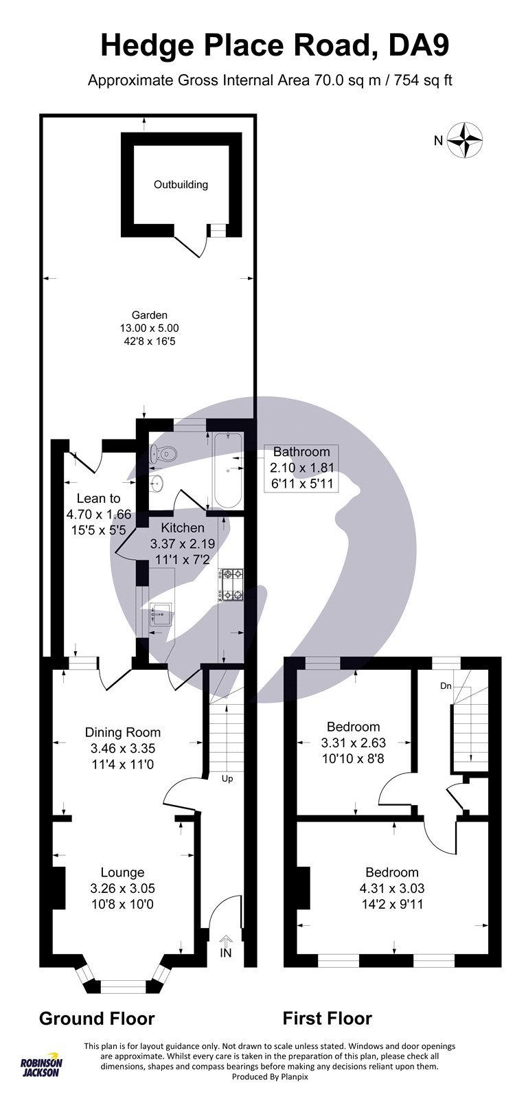
Rooms
Entrance Hall:Stairs to first floor.
Lounge: 3.25m x 3.05mDouble glazed bay window to front. Feature fireplace with gas fire.
Dining Room: 3.45m x 3.35mDouble glazed window to rear.
Kitchen: 3.38m x 2.18mDouble glazed window to side. Door to side leading to Lean To. Range of wall and base units with work surface over. Cooker. Stainless steel sink with drainer. Under counter fridge & freezer. Part tiled walls. Tiled flooring.
Lean To: 4.7m x 1.65mDoor to rear leading to rear garden.
Ground Floor Bathroom: 2.1m x 1.8mFrosted double glazed window to rear. Low level WC. Wash hand basin. Panelled bath. Wall-mounted boiler.
Landing:Double glazed window to rear. Built in cupboard.
Bedroom One: 4.32m x 3.02mTwo double glazed windows to front.
Bedroom Two: 3.3m x 2.64mDouble glazed window to rear.
