4 bedroom house for sale

High Street, Newington, Sittingbourne, ME9
Freehold
4 3 3
Ref: SIT260225

Property Description

Introducing The Chelsea, Plot 24 a beautifully designed four-bedroom detached family home, ready to reserve.

Offering 1,298 sq ft of spacious, modern living, this brand-new home blends sophistication with elegance. Thoughtfully designed throughout, it provides the perfect setting for family life or professionals seeking comfort, efficiency, and style.

Includes a 10-year structural warranty and 2-year Aile Homes aftercare support.

A fantastic opportunity to secure a stylish, high-quality detached home in a desirable location.

  • THE CHELSEA - PLOT 24 - FLOORING INCLUDED
  • Master Bedroom with En-Suite Bathroom and Built In Wardrobes
  • Carport / Parking for 2 Cars & EV Charger
  • 10 Year New Home Structural Warranty
  • Traditional Shaker Style Kitchen with Integrated Bosch appliances / Separate Utility Room
  • 2 Year Aile Homes Aftercare Support

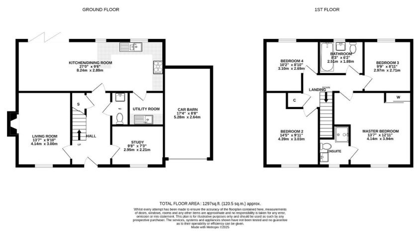
Rooms

Entrance Hall 4.4m x 2.57m

Double glazed door front. Stairs to first floor. Storage cupboard.

Study 2.95m x 2.2m

Double glazed window to front.

Cloakroom 1.85m x 1m

Low level WC. Vanity wash hand basin.

Living Room 4.14m x 3m

Double glazed window to front. Carpet.

Kitchen/Dining Room 8.23m x 2.9m

Double glazed bi-folding doors to rear. Two double glazed window to rear. Range of wall and base units with worksurface over. Integral appliances. Fitted oven with hob.

Utility Room 1.96m x 1.83m

Range of wall and base units with worksurface over. Sink unit. Space for washer and dryer.

Landing

Airing cupboard. Loft access. Storage cupboard. Carpet.

Bedroom One 4.14m x 3.94m

Double glazed window to front. Fitted wardrobes. Radiator. Carpet.

Ensuite Shower Room

Double glazed window to front. Low level WC. Vanity wash hand basin. Heated towel rail. Enclosed shower. Tiled flooring.

Bedroom Two 4.4m x 3.02m

Double glazed window to front. Radiator. Carpet.

Bedroom Three 2.97m x 2.72m

Double glazed window to rear. Radiator. Carpet.

Bedroom Four 3.1m x 2.7m

Double glazed window to rear. Radiator. Carpet.

Bathroom 2.51m x 1.88m

Double glazed window to rear. Low level WC. Vanity wash hand basin. Bath with shower over. Heated towel rail. Tiled flooring.

Garden

Patio and laid to lawn. Fenced in. Outside tap. Outdoor sockets and patio lighting. side Pedestrian access.

Parking

Block paved driveway with Sheltered car barn.

Utilities:
Electricity
Ask Agent
Water
Ask Agent
Heating
Ask Agent
Gas
Ask Agent
Sewerage
Ask Agent
Rights & Restrictions:
Is the property listed?
Ask Agent
Are there any restrictions associated with the property?
Ask Agent
Are there any easements, servitudes, or wayleaves?
Ask Agent
Are there any public rights of way across the property or its boundaries?
Ask Agent
Flood and Erosion Risk:
Has there been any flooding in the last 5 years?
Ask Agent
Flooding sources affecting the property:
Ask Agent
Are there any flood defences:
Ask Agent

Video Tour

Video Tour

Request a Valuation

Every year we are invited to value over 10,000 properties for sale or to let. Please request your FREE, no obligation valuation - simply enter your postcode below.