Property Description
This charming three bedroom Victorian terraced property offers a perfect blend of period character and modern living, ideally located within walking distance of the town centre, main train stations, and local shops.
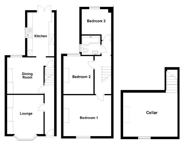
The home features two generous double bedrooms and a well appointed bathroom conveniently located upstairs.
Downstairs, you'll find a separate living room complete with a cosy log burner, creating a warm and inviting space to relax, while the dining area flows seamlessly into the kitchen, ideal for entertaining.
The property also benefits from a spacious basement, offering excellent storage or potential for further use. Outside, the large, long garden provides a lovely outdoor retreat, perfect for gardening or family enjoyment.
With permit parking available at the front, and the home presented in move-in ready condition, this is a fantastic opportunity for those seeking character, comfort, and convenience in a desirable location.
- Three Bedroom Terraced Victorian Property.
- Large Garden.
- Walking Distance From Town Centre & Stations.
- Useful Cellar.
- Upstairs Bathroom.
- Permit Parking.
Rooms
Entrance HallDoor, stairs
Lounge 4.37m x 3.38mBay window to the front, door, fireplace
Dining Room 3.66m x 3.45mWindow to the rear, door, door leading to basement
Kitchen 4.3m x 2.51mDouble doors leading into the garden, window to the side, door, space for white goods
CellarStairs, window to the front
LandingStairs
Bedroom 1 4.47m x 3.7mWindow to the front, door
Bedroom 2 3.73m x 2.8mWindow to the rear, door
Bedroom 3 2.95m x 2.67mWindow to the rear, door
BathroomWindow to the side, shower over bath, basin, WC, door
