Property Description
Guide Price- £240,000- £260,000
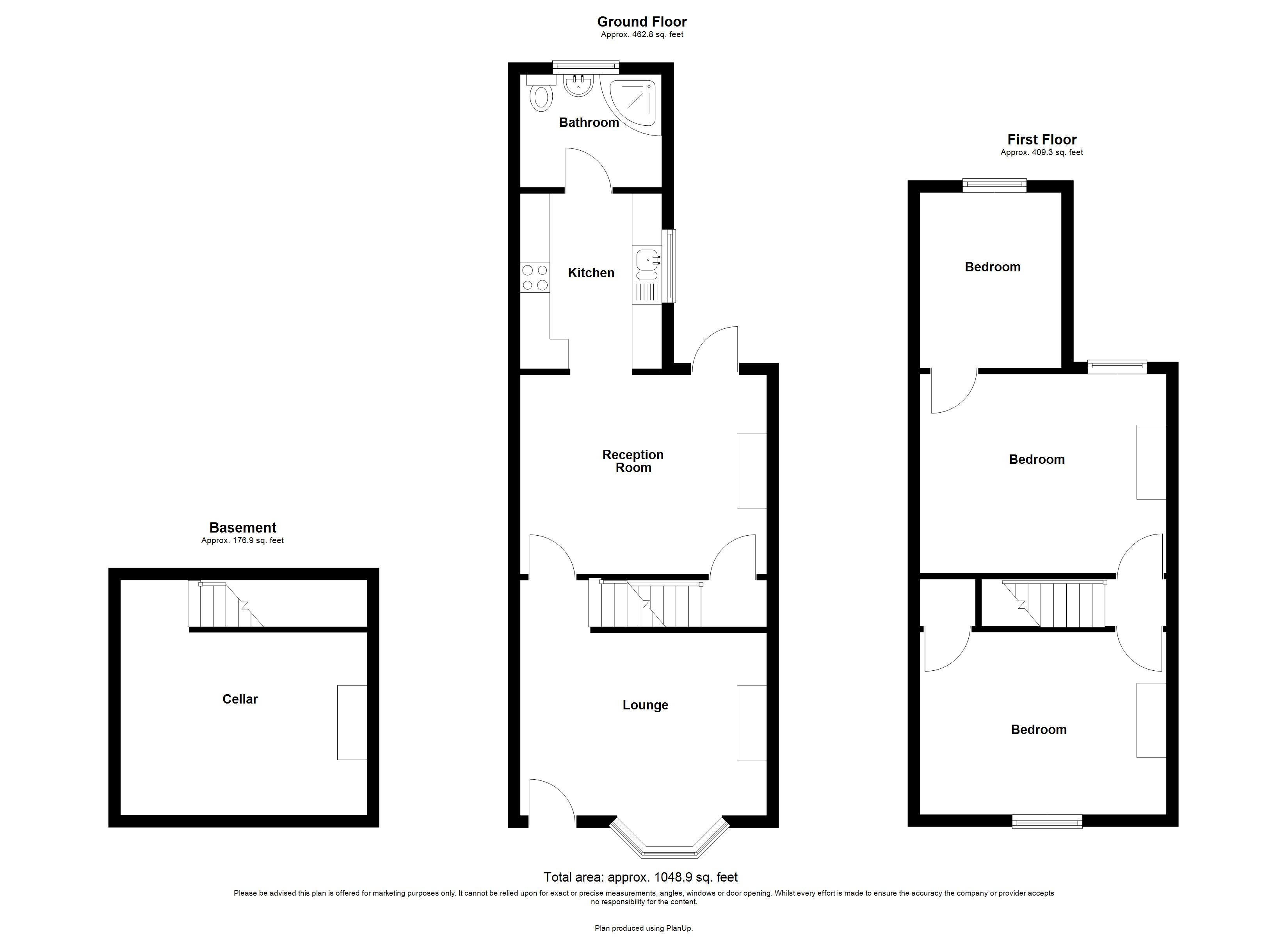
Robinson Michael and Jackson present this spacious three bedroom terraced home ideally situated near Gillingham railway station, offering excellent transport links for commuters. The property boasts a bright and airy lounge, a well-appointed modern kitchen with ample storage, and a generous dining area perfect for entertaining. Upstairs you will find three well-proportioned bedrooms and a contemporary family bathroom. Externally, the home benefits from a private rear garden, ideal for relaxing or hosting guests. Conveniently located close to local shops, schools, and amenities, this property makes an excellent choice for families, first time buyers, or investors alike.
- 1048 Square Feet
- 1.1 Mile to Medway Hospital
- 0.5 Miles to Gillingham Train Station
- Modern Kitchen
- Spacious Cellar
- Viewing Highly Recommended
Rooms
Lounge 5.12m x 4.34mDouble glazed window to front. Open fireplace. Carpet. Radiator.
Dining Room 4.37m x 3.47Door to lean to. Access to cellar. Electric fire place. Carpet. Radiator.
Cellar 4.41m x 3.06mKitchen 3.26m x 2.51mDouble glazed window to side. Range of wall and base units with worksurface over. Gas hob with oven. Space for appliances. Laminate flooring.
Lean To 5.04m x 1.73mWindow to side. Space for appliances. Tiled flooring.
Bedroom One 4.39m x 3.03mDouble glazed window to front. Storage cupboard. Carpet.
Bedroom Two 4.4m x 3.35mDouble glazed window to rear. Laminate flooring. Radiator.
Bedroom Three 2.98m x 2.39mDouble glazed window to rear. Boiler. Laminate flooring.
Bathroom 2.25m x 1.67mDouble glazed window to rear. Vanity wash hand basin. Low level WC. Walk in shower. Heated towel rail. Laminate flooring.
Rear GardenLaid to lawn. Patio. Rear access.
