Property Description
Spacious Extended Family Home with Double Storey Rear Extension & Driveway – Move-In Ready!
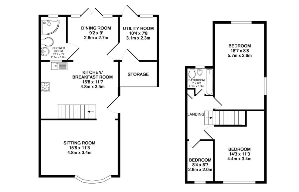
Welcome to this beautifully presented and thoughtfully extended three-bedroom semi-detached family home, ideally located in a sought-after residential area. Benefiting from a full-width double storey rear extension, the property offers an abundance of living space and flexibility to suit modern family life.
Ground Floor Accommodation:
The home opens into a bright and welcoming sitting room at the front, featuring a large bay window that fills the room with natural light. To the rear is a generously sized kitchen/breakfast room, offering plenty of storage and workspace, with room for casual dining.
Adjoining the kitchen is a separate dining room, perfect for family meals or entertaining. A spacious utility room provides convenient space for laundry and storage. Completing the ground floor is a modern shower room, ideal for guests or busy households.
First Floor Accommodation:
Upstairs, the extended layout creates three well-proportioned bedrooms. The principal bedroom stretches across the rear of the home, providing a peaceful retreat with ample space. A second double bedroom is positioned at the front, and a third bedroom offers flexibility as a child’s room, study, or nursery. A contemporary family bathroom serves the first floor.
External Features:
To the front, the property benefits from a driveway providing off-street parking. The rear garden is designed for low maintenance, offering a private outdoor space perfect for relaxing or entertaining.
This is a fantastic opportunity to purchase a spacious and move-in ready family home in a popular location. Early viewing is highly recommended!
- Beautifully Presented Throughout
- Three Bedroom semi detached house
- Double Drive
- Downstairs Shower Room
- Kitchen/Diner
- Must Be Viewed
