Property Description
Situated in the ever-popular Kingston Crescent, this extended four-bedroom semi-detached home is ideal for families seeking both space and flexibility. With generous living accommodation, a driveway, and a garden complete with a home office, this property offers everything needed for modern family life.
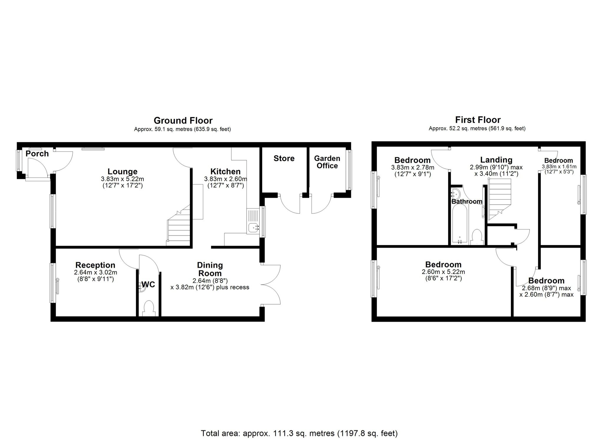
On arrival, you are welcomed by a porch leading into a bright and spacious front room. To the rear sits a recently renovated kitchen, offering plenty of storage. To the side, the property has been thoughtfully extended to create a fantastic dining room with direct access to the garden, as well as an additional separate room that could be used as a downstairs bedroom, playroom or study, alongside a practical downstairs WC.
Upstairs, the home boasts four well-proportioned bedrooms and a family bathroom. The master bedroom is notably larger than average, providing a superb retreat, while the further bedrooms offer plenty of space for family, guests or working from home.
Outside, the property benefits from a private driveway for off-road parking and a generous rear garden. The garden is enhanced by a purpose-built office with power, perfect for home working, hobbies or a private retreat away from the main house.
Kingston Crescent is a sought-after residential location, offering excellent access to well-regarded schools, local amenities and transport links. With its versatile layout, extended living space and modern features, this property is perfectly suited to growing families looking for a long-term home in a desirable area.
Early viewing is highly recommended to appreciate the size, flexibility and quality of accommodation on offer.
- Extended 4 bed
- Downstairs cloakroom
- Large master bedroom
- Must be viewed
- Driveway for 2 cars
- Popular location
