Property Description
GUIDE PRICE £340,000 - £360,000
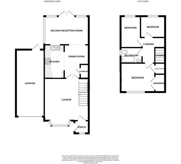
This beautifully presented three-bedroom semi-detached home offers spacious, versatile living and has been tastefully updated throughout, making it ideal for families or buyers seeking a move-in ready property.
The property has an attractive frontage and a welcoming entrance porch leading into a bright and well-proportioned interior. The ground floor features a generous front lounge with bay window, creating a comfortable and inviting living space. To the rear, a modern fitted kitchen flows into a dining area and a second reception room, offering excellent flexibility for family living, entertaining, or a home office/playroom. Double doors from the rear reception provide access to the garden, allowing for plenty of natural light and a seamless indoor-outdoor feel.
Upstairs, the first floor offers three well-sized bedrooms and a contemporary family bathroom, all presented in excellent decorative order. The layout is practical and family-friendly, with useful storage and a bright landing area.
Externally, the property benefits from off-street parking via a private drive, a garage, and a rear garden perfect for relaxing or entertaining. Internally, the home has been tastefully finished, with a well-maintained feel throughout, meaning buyers can simply move straight in and enjoy.
- 3 bedroom semi detached
- Extended to the rear
- Driveway
- Stunning Kitchen / Diner
- Close Proximity to M2/M20 Motorway Links
- Beautiful Secluded Rear Garden
