Property Description
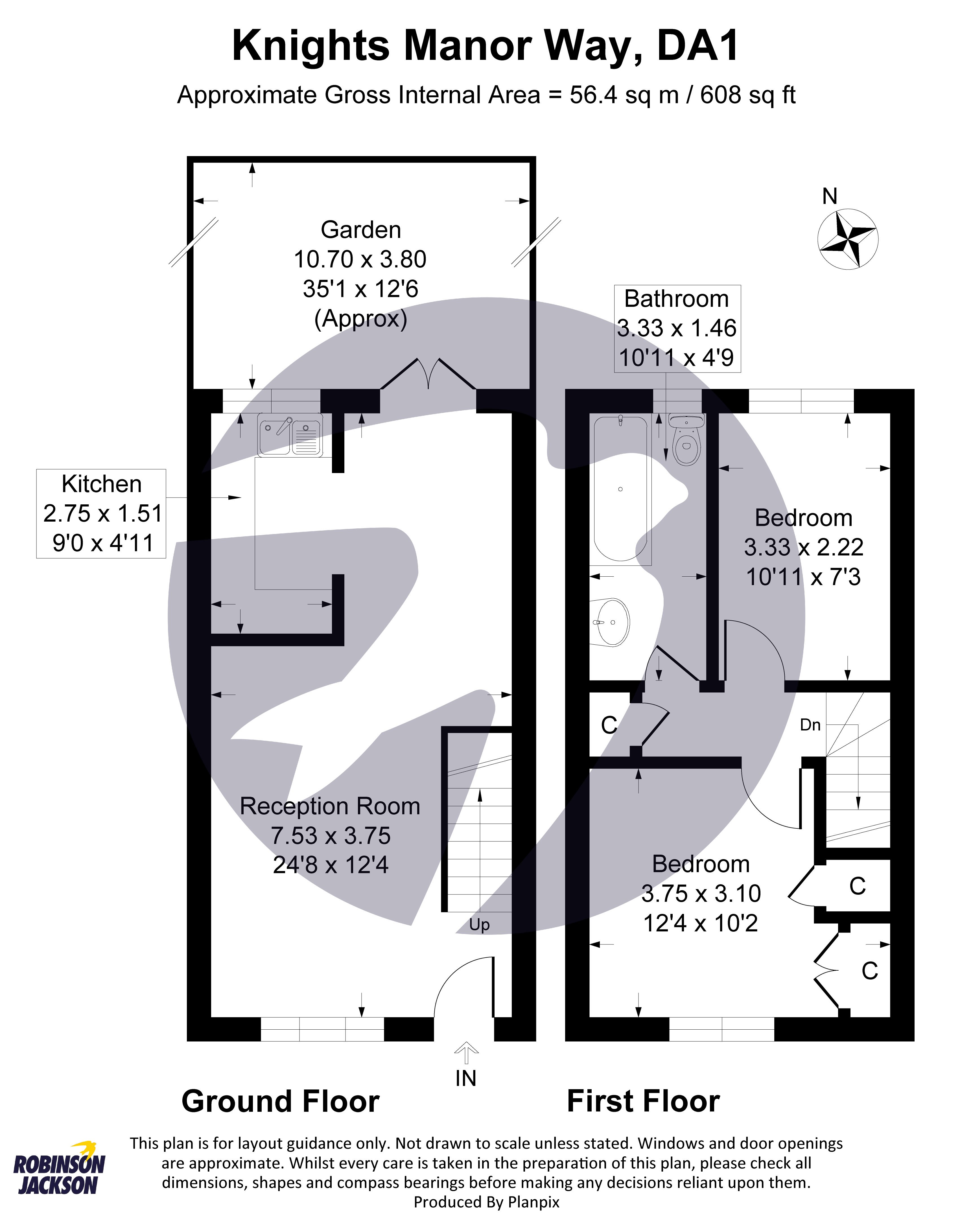
Robinson Jackson are pleased to present this two-bedroom mid-terrace house, offering an excellent opportunity for first-time buyers or investors looking to add value through refurbishment. Situated in a popular and well-established residential area, the property is in need of full modernisation, allowing the new owner to put their own stamp on it. The home features a generously sized garden, perfect for outdoor entertaining or potential landscaping, and also benefits from an en bloc garage providing additional storage or parking.
Ideally located for convenience, the property is within easy reach of Dartford mainline station, offering direct links into London and surrounding areas. The vibrant Dartford town centre is also nearby, providing a range of shops, eateries, and essential amenities. With strong potential and a sought-after location, this is a fantastic project property with plenty of scope to create a comfortable home or profitable investment
- Two Bedroom Terrace House
- In Need Of Full Modernization
- Well Located For Dartford Station
- En Bloc Garage
- Ideal For FTB Or Investment
Rooms
ReceptionDouble glazed window and hard wood door to front. Stairs to first floor. Radiator. Double glazed double doors to rear.
KitchenSemi Open plan to the reception. Double glazed window to rear. A range of fitted wall and base units with worktops over. Stainless steel sink and drainer. Space for fridge freezer, cooker and washing machine. Tiled splash backs. Vynal flooring.
LandingFitted carpet. Storage cupboard.
Bedroom OneDouble glazed window to front. Radiator. Storage cupboard. Built in wardrobe.
Bedroom TwoDouble glazed window to rear. Radiator. Fitted carpet.
BathroomDouble glaze window to rear, Panel enclosed bath with mixer taps. Pedestal mounted wash hand basin. Low level WC. Tiled splash backs. Radiator.
