Property Description
Guide Price £400,000-£425,000
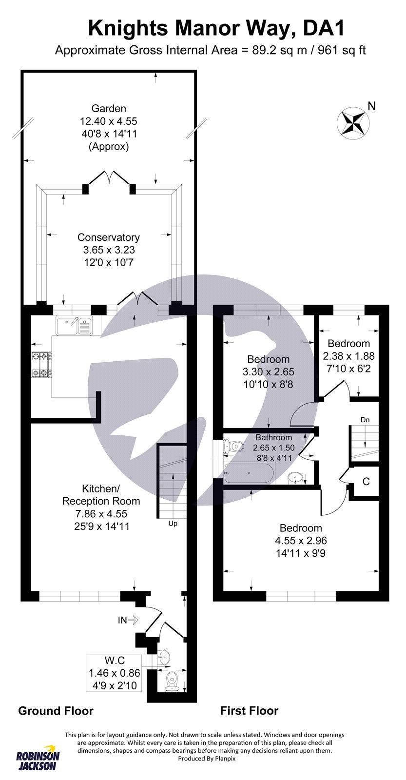
Robinson Jackson are delighted to present this beautifully maintained three-bedroom family home, ideally situated within the highly desirable Knights Manor Way development in Dartford. Offering spacious and versatile living, the property features a bright conservatory perfect for year-round enjoyment, and a convenient ground floor WC for added practicality. Set in a peaceful residential enclave with excellent transport links and local amenities nearby, this home combines comfort, style, and location—making it an ideal choice for growing families
- Popular Residential Area
- Open Plan Living Area
- Ground Floor Wc
- Conservatory
- Garage En-Bloc
- Close to Mainline Station and Town Centre
Rooms
LoungeDouble glazed entrance door. Georgian style double glazed window to front. Radiator. Carpet. Carpeted stairs to first floor.
Ground Floor WcFrosted double glazed window to side. Low level Wc. Vanity wash hand basin. Heated towel rail. Part tiled. Wood effect laminate flooring.
Kitchen DinerDouble glazed window to rear. Matching range of wall and base units with complimentary worksurfaces. One and a half bowl stainless steel sink unit. Worksurfaces. Tiled splashbacks. Plumbing for washing machine. Cooker hood. Built in oven. Induction hob. Built in fridge freezer. Tile effect flooring. Open to dining area which is carpeted with an under stairs storage cupboard. Double glazed French doors to a conservatory.
ConservatoryDouble glazed doors to garden. Double glazed windows to rear and side. Base units with complemetary worksurface over with plumbing fro washing machine. Wood effect flooring.
LandingAccess to loft housing combi boiler. Storage cupboard Carpet.
Bedroom OneGeorgian style double glazed window to front. Radiator. Carpet. Built in double wardrobes.
Bedroom TwoGeorgian style double glazed window to rear. Radiator. Carpet.
Bedroom ThreeGeorgian style double glazed window to rear. Radiator. Carpet.
BathroomFrosted double glazed window to side. Coved ceiling. Low level WC. Panelled bath with separate electric shower over. Wash hand basin. Part tiled walls. Heated towel rail. Vinyl flooring.
