Property Description
Guide price £450,000-£475,000
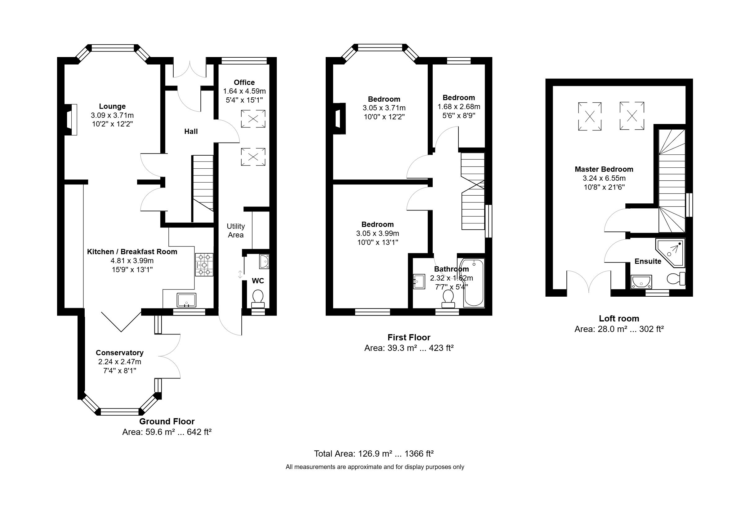
This beautifully extended 1930s semi-detached home offers generous and versatile living space, perfect for modern family life. The property features a welcoming lounge, a stylish modern kitchen, and a bright conservatory overlooking the expansive garden.
The side extension provides additional functionality, comprising a convenient WC, a dedicated office space, and a practical utility area.
Upstairs, you'll find a contemporary family bathroom and three well-proportioned bedrooms. The impressive master suite occupies the second floor, complete with an en-suite bathroom and a charming Juliet balcony offering views over the rear garden.
Externally, the home boasts a substantial rear garden stretching approximately 150 feet ideal for families, gardening enthusiasts, or entertaining and a private driveway to the front for off-street parking.
This spacious and well-presented home blends original character with modern touches, offering comfort, space, and convenience in equal measure.
- 1366 Square Feet
- Highly sought-after location
- Arranged over Three Floors
- Ensuite to Master bedroom
- Convenient access to M2 motorway links
- Walking distance to High Street
- Viewing Highly Recommended
- Study/utility room
Rooms
Ground floor w.c 0.97m x 1.75mLow level w.c, radiator, double glazed window to rear.
Lounge 3.1m x 3.7mWood flooring, double glazed bay window to front, radiator, gas fire.
Kitchen/Breakfast Room 4.8m x 4mWood flooring, wall to base units with roll top work surface over, hob with extractor fan, fridge freezer, undercounter freezer, dish washer, oven , grill with extractor fan, radiator, double glazed window to rear, bi-folding doors to conversatory.
Conservatory 2.24m x 2.46mTiled flooring, double glazed door to side.
Office/Utility Room 1.63m x 4.6mWood flooring, radiator, double glazed door to rear, Velux window x two, double glazed window to front.
Master Bedroom 3.25m x 6.55mWood flooring, radiator, Velux window x two to front., double glazed french doors to juilet balcony.
Ensuite Bathroom to Master 1.93m x 1.65mTiled flooring, shower cubicle, double glazed window to rear, towel rail, basin with mixer tap, low level w/c.
Bedroom Two 3.05m x 3.7mCarpet, double glazed window to front, radiator.
Bedroom Three 3.05m x 4mCarpet, double glazed window to rear, radiator.
Bedroom Four 1.68mx2.67mCarpet, radiator, double glazed window to front.
Bathroom 2.3m x 1.63mVinyl flooring, double glazed window to rear, panelled L shape bath with shower over, basin with mixer tap, Towel rail, low level w/c.
Rear gardenPatio, lawn, outside tap, power supply, summer house, three garden sheds. Driveway to front for multiple vehicles, outside tap and motorbike anchor.
