Property Description
GUIDE PRICE £325,000-£375,000
Located on the popular Livingstone Road in Gravesend, this well-presented three-bedroom mid-terrace property offers generous living space arranged over two floors and is finished to a good modern standard throughout, making it an ideal purchase for families, first-time buyers or those seeking a turnkey home.
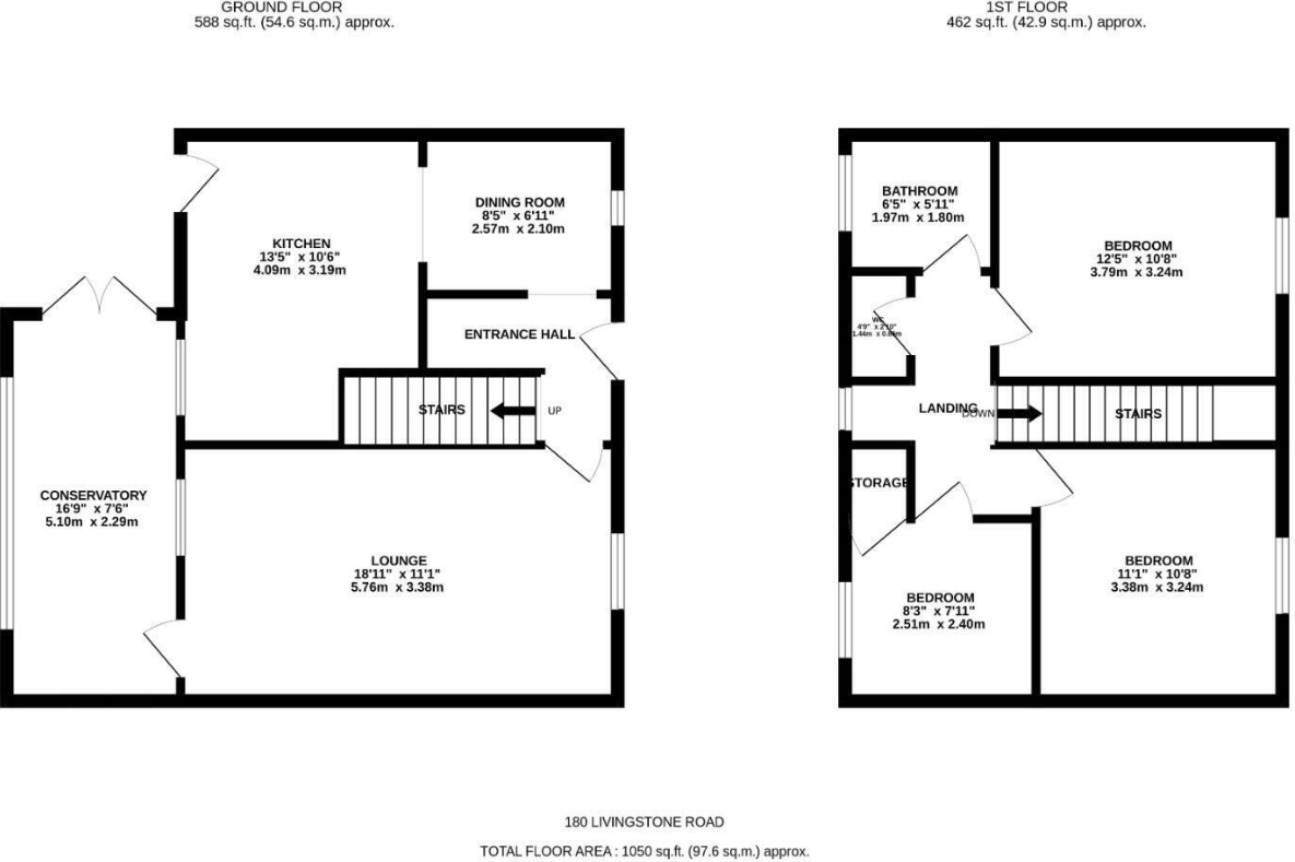
The ground floor begins with a welcoming entrance hall, providing access to the main living areas and stairs to the first floor. To the front of the property sits a spacious lounge, offering an excellent area for everyday living with ample room for a full suite of furniture. The layout flows well, creating a comfortable and inviting environment for both relaxing and entertaining.
To the rear, the property boasts a modern fitted kitchen with plenty of worktop and cupboard space, ideal for keen cooks and busy households alike. Adjacent to the kitchen is a dedicated dining room, offering a defined space for family meals and entertaining guests. This room opens into the conservatory, which adds valuable additional living space and enjoys views over the rear garden, making it a versatile area suitable for dining, relaxing or use as a playroom or home office.
Upstairs, the first floor comprises three well-proportioned bedrooms. The main bedroom is a comfortable double, while the second bedroom also offers generous space for bedroom furniture. The third bedroom works perfectly as a child’s room, guest room or study. The family bathroom is finished to a modern standard and is centrally located off the landing, serving all bedrooms.
The property is presented in good and modern condition throughout, allowing buyers to move straight in with minimal work required. Its practical layout, combined with modern finishes and additional living space, makes it a particularly attractive option within this well-connected residential location.
Livingstone Road is conveniently positioned for local amenities, schools and transport links, making this an excellent long-term home with broad appeal.
- Three-bedroom mid-terrace home
- Spacious lounge and separate dining room
- Modern fitted kitchen
- Conservatory providing additional living space
- Contemporary bathroom and interiors
- Popular Gravesend residential location
Rooms
HallwayLVT floor. Radiator.
Lounge 5.77m x 3.38mDouble glazed window to front. Radiator. LVT floor. Feature media wall.
Dining Room 2.57m x 2.1mDouble glazed window to front. Tiled floor. Radiator.
Conservatory 5.1m x 2.29mDouble glazed window to rear and side. LVT floor. Radiator.
Kitchen 4.1m x 3.2mDouble glazed window to conservatory. Tiled floor. Integrated sink, oven, grill, hob. Wall and base level cupboards with worktops over. Space for appliances.
LandingCarpet.
Master Bedroom 3.78m x 3.25mDouble glazed window to front. Radiator. Carpet.
Bedroom 2 3.38m x 3.25mDouble glazed window to front. Laminate floor. Radiator.
Bedroom 3 2.51m x 2.41mDouble glazed window to rear. Radiator. Laminate floor.
Bathroom 1.96m x 1.8mDouble glazed frosted window to rear. Tiled floor. Low level WC. Bath with overhead shower. Tiled walls. Wash hand basin.
Separate WC 1.45m x 0.86mDouble glazed frosted window to side. Tiled floor. Low level WC. Wash hand basin.
