Property Description
Guide Price- £300,000 - £325,000
Open Day on Saturday 14th March- Call now to book in!
Robinson Michael & Jackson present this beautifully maintained three-bedroom home, offered in great condition throughout and ready to move straight into. The property boasts a spacious and welcoming lounge filled with natural light, a well-appointed modern kitchen with ample storage and workspace, and a stylish family bathroom finished to a high standard. Upstairs, three separate bedrooms provide comfortable and versatile accommodation, ideal for families, guests, or a home office. Externally, the home benefits from a private rear garden, perfect for relaxing or entertaining. Conveniently located close to local amenities, reputable schools, and transport links, this is an excellent opportunity to secure a fantastic home.
- 828 Square Feet
- 0.5 Miles to Rainham Train Station
- Excellent Local Schools
- Private Driveway
- Stunning Interior Look
- Viewing Highly Recommended
Rooms
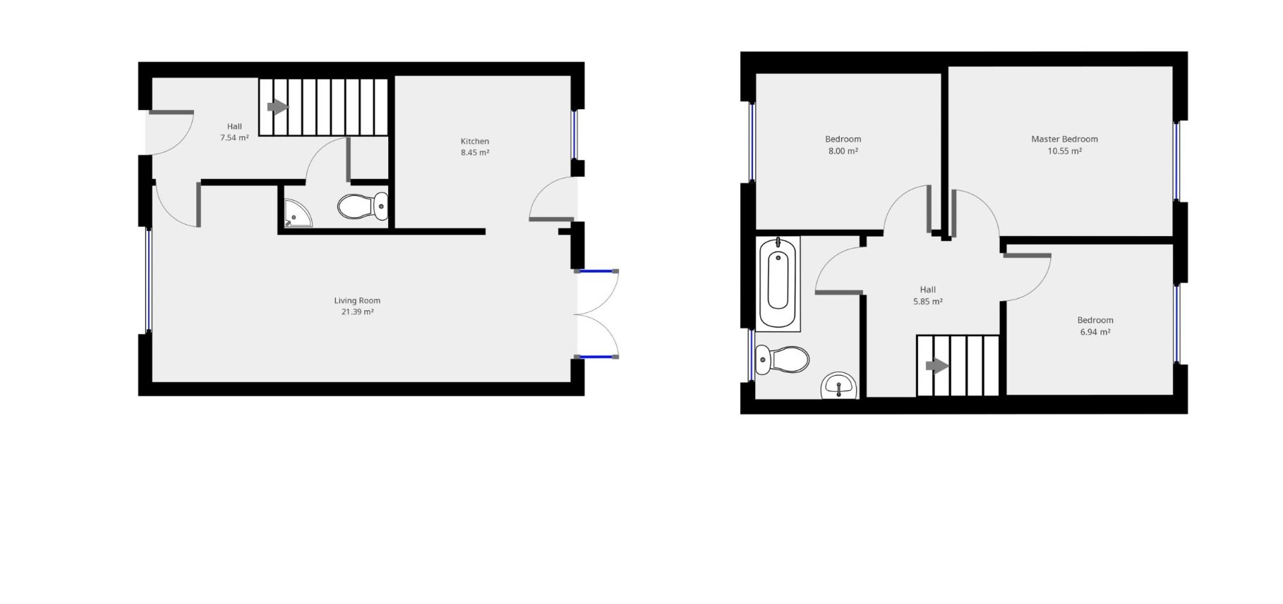
Entrance Hall 1.73m x 0.4mDouble glazed door to rear. Stairs to first floor. Carpet. Radiator.
Cloakroom 2.34m x 1.83mLow level WC. Vanity wash hand basin. Tiled flooring. Radiator.
Lounge 7.42m x 3.45mDouble glazed door to rear. Double glazed window to front. Radiator.
Kitchen 3.18m x 2.67mDouble glazed window and door to rear. Range of wall and base units with work surface over. Double oven and hob with extractor. Integrated appliances. Tiled flooring.
Landing 2.87m x 2.77mLoft access. Carpet.
Bedroom One 3.73m x 3.45mDouble glazed window to front. Fitted wardrobes. Carpet. Radiator.
Bedroom Two 3.15m x 2.44mDouble glazed window to rear. Fitted wardrobes. Carpet. Radiator.
Bedroom Three 2.77m x 2.54mDouble glazed window to front. Carpet. Radiator.
Bathroom 2.67m x 1.55mDouble glazed window to rear. Bath with shower attachment. Heated towel rail. Vinyl flooring.
Rear GardenPatio. Artificial lawn. Fenced in. Shed. South facing. Tap.
ParkingBlock paved driveway to front for two cars.
