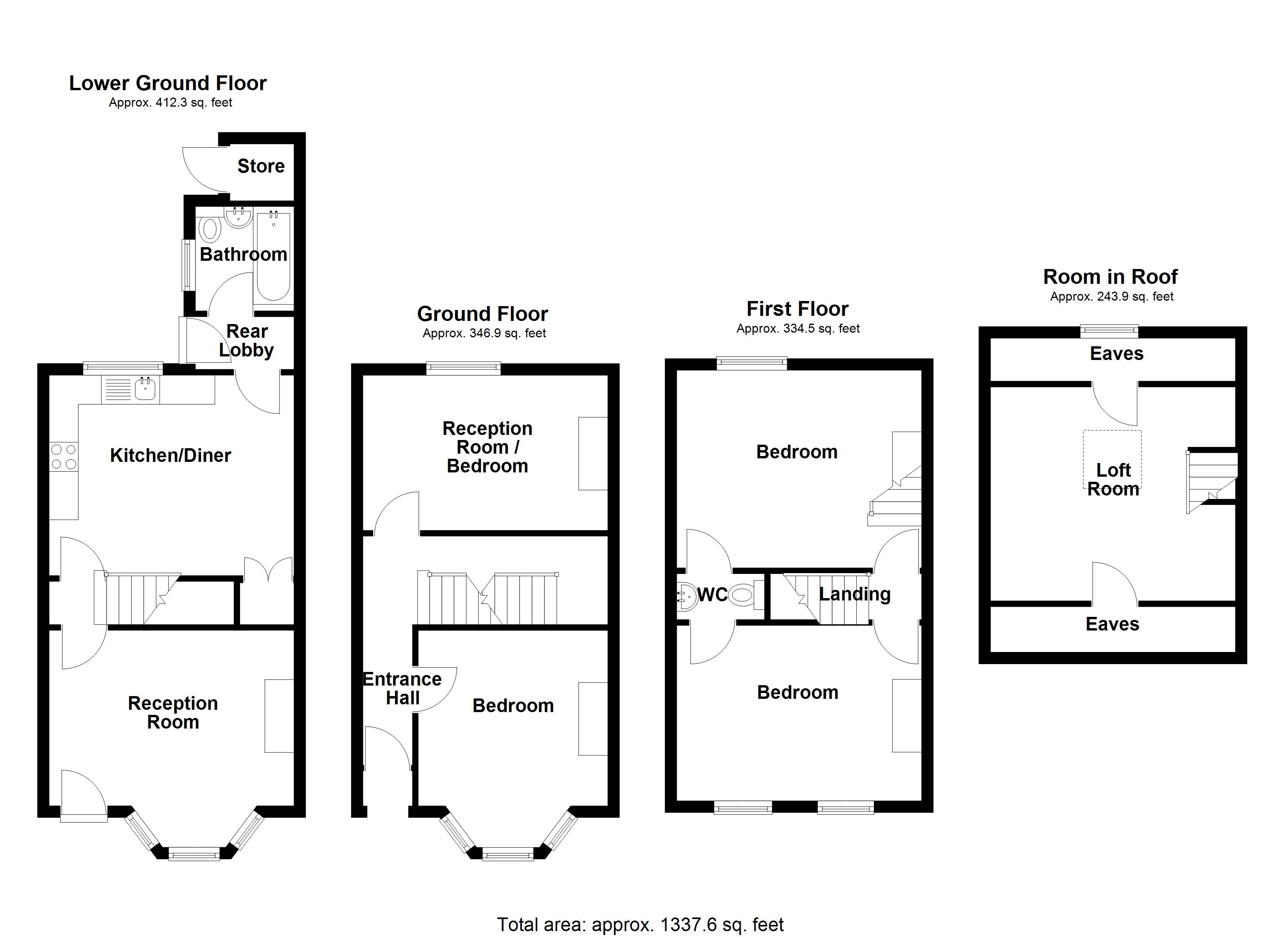
Property Description
Nestled on Milburn Road in Gillingham, this charming 4-bedroom Victorian terrace offers a spacious and versatile living space arranged over three floors, perfect for a large family or as a House in Multiple Occupation (HMO). With a flexible layout, the property boasts a convenient cloakroom on the upper floor and a well-appointed bathroom on the lower ground level. Situated just 0.47 miles from Gillingham Train Station and within walking distance to the university, this home blends period character with modern practicality, making it an ideal choice for first-time buyers or savvy buy-to-let investors. Viewing is highly recommended to appreciate its full potential!
- 1337.6 Square Feet
- 0.47 Miles to Gillingham Train Station
- Walking Distance to the University
- Arranged over three floors
- Essential Damp works required Report Avaliable at point of offer
- Ideal for a large family or HMO
- Cloakroom on the Upper Floor
- Lower Ground Floor Bathroom
- Flexible Layout
- Ideal First Time Buy or Buy to Let
- Viewing Recommended
Rooms
Entrance HallStairs to upper floor. Stairs to lower floor. Radiator. Laminate floor.
Bedroom Four 3.7m x 3.23mDouble glazed window to front. Fireplace. Radiator. Carpet.
Bedroom Three 4.32m x 2.62mDouble glazed window to rear. Radiator. Laminate floor.
LandingCarpet.
Bedroom One 4.2m x 2.97mDouble glazed window to front. Radiator. Carpet.
CloakroomLow Level WC. Wall mounted sink.
Bedroom Two 4.2m x 3.66mDouble glazed window to rear. Radiator. Carpet.
Lower Ground Floor LoungeDouble glazed window to front. Radiator. Carpet.
Kitchen 4.14m x 3.43mDouble glazed window to rear. Range of wall and base units with worktops over. Log burner. Space for appliances. Pantry. Laminate floor.
Bathroom 1.73m x 1.65mDouble glazed window to rear. Low level WC. Pedestal hand wash basin. Panelled bath with shower over. Radiator. Laminate floor.
Rear Garden 10.67mPatio area. Laid to lawn.
