Property Description
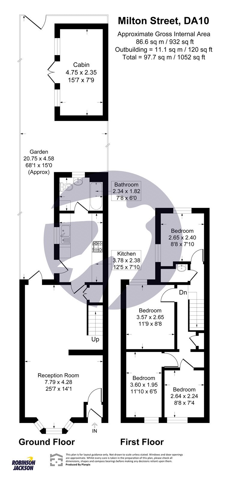
A charming period terraced house on Milton Street in Swanscombe offering versatile accommodation with four bedrooms (the existing large master bedroom has been cleverly divided with a stud wall to create a fourth bedroom, though this could easily be removed to return to a generous three-bed layout). The property features a ground floor bathroom, upstairs WC, and the added convenience of an outhouse. Enjoy a south-east facing garden that catches the morning sun, along with full double glazing and efficient gas central heating throughout. Ideally located within walking distance to local primary and secondary schools, and just a short distance from both Swanscombe and Ebbsfleet International stations, this home is perfectly placed for daily commuting, vibrant local amenities, and excellent schooling options.
- Charming Period Terraced House
- Four Bedrooms
- Ground Floor Bathroom
- Upstairs WC
- Outhouse
- South East Facing Garden
- Full Double Glazing & Efficient Gas Central Heating
- Walking Distance to local Primary & Secondary Schools
- Close to Swanscombe & Ebbsfleet International Stations
