Property Description
Situated in the desirable area of Oastview, this well-presented home offers approximately 922 sq. ft. of comfortable living space, making it ideal for families and professionals alike.
Conveniently located just 0.6 miles from Rainham Train Station and 0.5 miles from Rainham High Street, the property provides easy access to transport links, local amenities, shops, and restaurants. It also falls within close proximity to highly regarded local schools, making it an excellent choice for growing families.
The home boasts a spacious driveway and garage, offering ample parking and storage. Inside, the layout is both practical and inviting, featuring a convenient ground floor cloakroom and well-proportioned living areas designed for modern living.
This is a fantastic opportunity to acquire a home in a sought-after location with so much to offer.
- 922 sq. ft. of living Space
- Just 0.6 Miles From Rainham Train Station
- Only 0.5 Miles to Rainham High Street
- Located Close to Excellent Local Schools
- Spacious Driveway With Garage
- Convenient Ground Floor Cloakroom
- Viewing Highly Recommended to Fully Appreciate the Property
Rooms
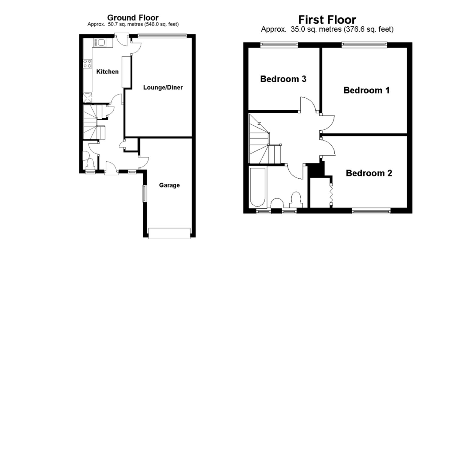
Hallway 3.84m x 2.06mDouble glazed door to front. Under stairs storage. Stairs to first floor. Parquet flooring. Radiator.
Cloakroom 0.84m x 1.65mDouble glazed window to front. Low level WC. Wash hand basin. Laminate flooring.
Lounge / Dining Room 5.61m x 3.7mDouble glazed door to rear. Parquet flooring. Two radiators.
Kitchen 3.8m x 2.6mDouble glazed window and door to rear. Range of wall and base units with worksurface over. Oven and gas hob. Space for appliances. Laminate flooring. Radiator.
Landing 0m x 1.5mCarpet. Access to part boarded loft via ladder.
Bedroom One 3.56m x 3.35mDouble glazed window to rear. Carpet. Radiator.
Bedroom Two 3.66m x 2.67mDouble glazed window to front. Fitted wardrobes. Radiator.
Bedroom Three 2.74m x 2.57mDouble glazed window to rear. Carpet. Radiator.
Bathroom 2.24m x 1.85mTwo double glazed window to front. Low level WC. Vanity wash hand basin. Bath with shower over. Heated towel rail. Vinyl flooring.
Garage 4.95m x 2.95mInternal tap.
Rear GardenPatio. Fenced in. Tap.
ParkingDriveway to front.
