Property Description
Guide Price £280,000 - £300,000
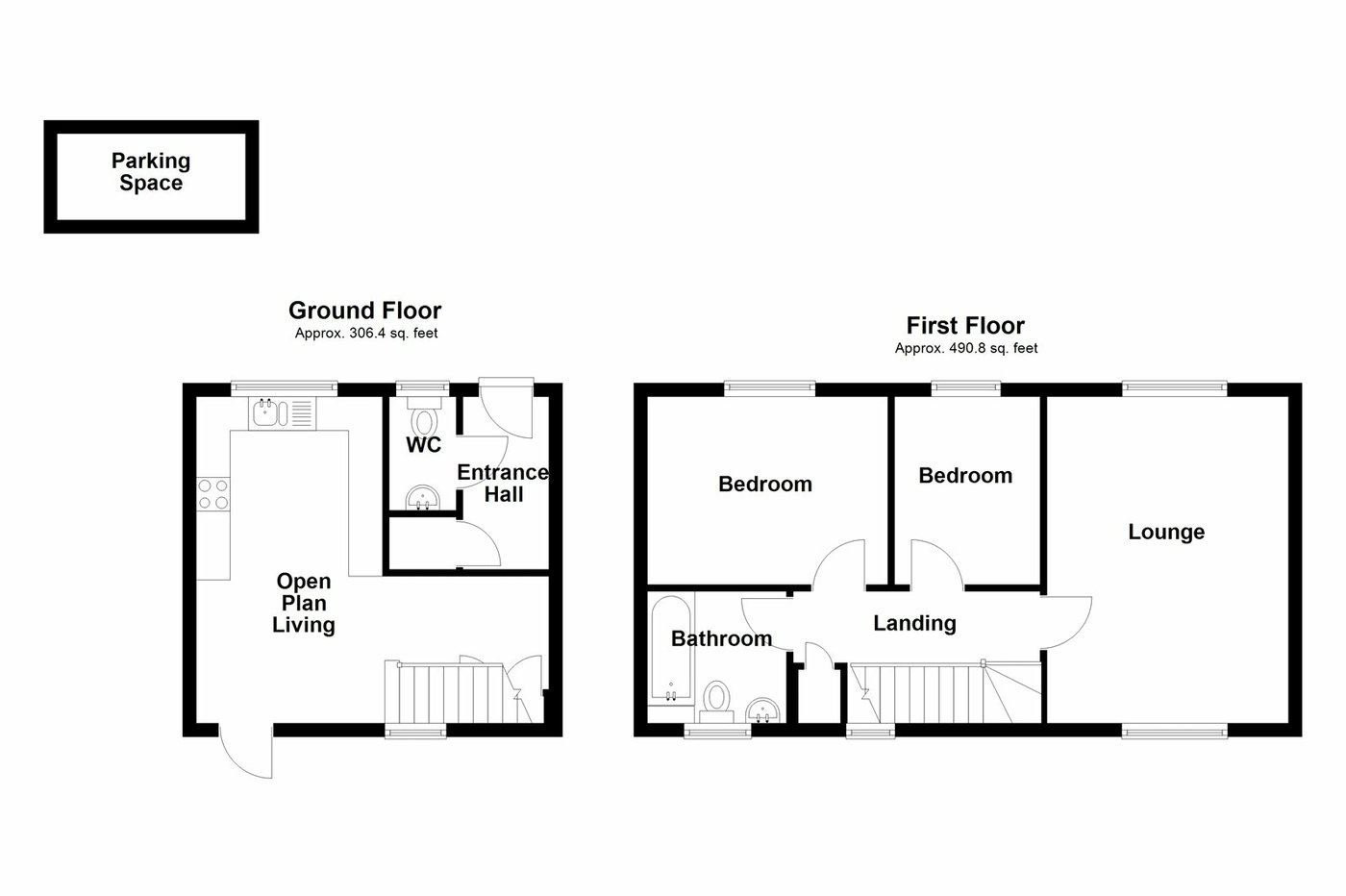
This charming two-bedroom detached house on Oswald Drive, Strood, offers 732 square feet of modern, well-designed living space, making it an ideal choice for first-time buyers or as a buy-to-let investment. Featuring a stylish kitchen/diner, a convenient downstairs cloakroom, and a private garden, this home blends comfort and practicality. With allocated parking and a prime location just 1.05 miles from Cuxton Train Station, it provides easy access to local amenities and transport links, ensuring a perfect balance of convenience and contemporary living.
- 732 Square Feet
- 1.05 Miles to Cuxton Train Station
- Downstairs Cloakroom
- Modern Kitchen/Diner
- Own Private Garden
- Allocated Parking
- Ideal First Time Buy or Buy to Let
Rooms
Entrance HallLaminate flooring, double glazed door to front, Radiator, utility cupboard, stairs to first floor.
Downstairs Cloakroom 1.65m x 0.84mLaminate flooring, double glazed window to front, laminate flooring, fully tiled walls.
Kitchen/Diner 4.88m x 2.64mLaminate flooring, double glazed window to front, Double glazed doors to rear, range of wall and base units with work tops over intergrated fridge freezer, dish washer, electric oven, hob with extractor fan.
LandingCarpet, double glazed window to rear, airing cupboard.
Lounge 4.8m x 3.5mAmtico flooring, double glazed window to front & rear, radiator.
Bedroom One 3.5m x 2.8mCarpet, double glazed window to front, radiator.
Bedroom Two 2.51m x 2.13mCarpet, double glazed window to front, radiator.
Bathroom 2.03m x 2mDouble glazed window to rear, wall mounted heated towel rail, shower cubicle.
Rear gardenRear access, astro turf.
ParkingAllocated parking space to rear.
