Property Description
GUIDE PRICE £950,000-£1,025,000.
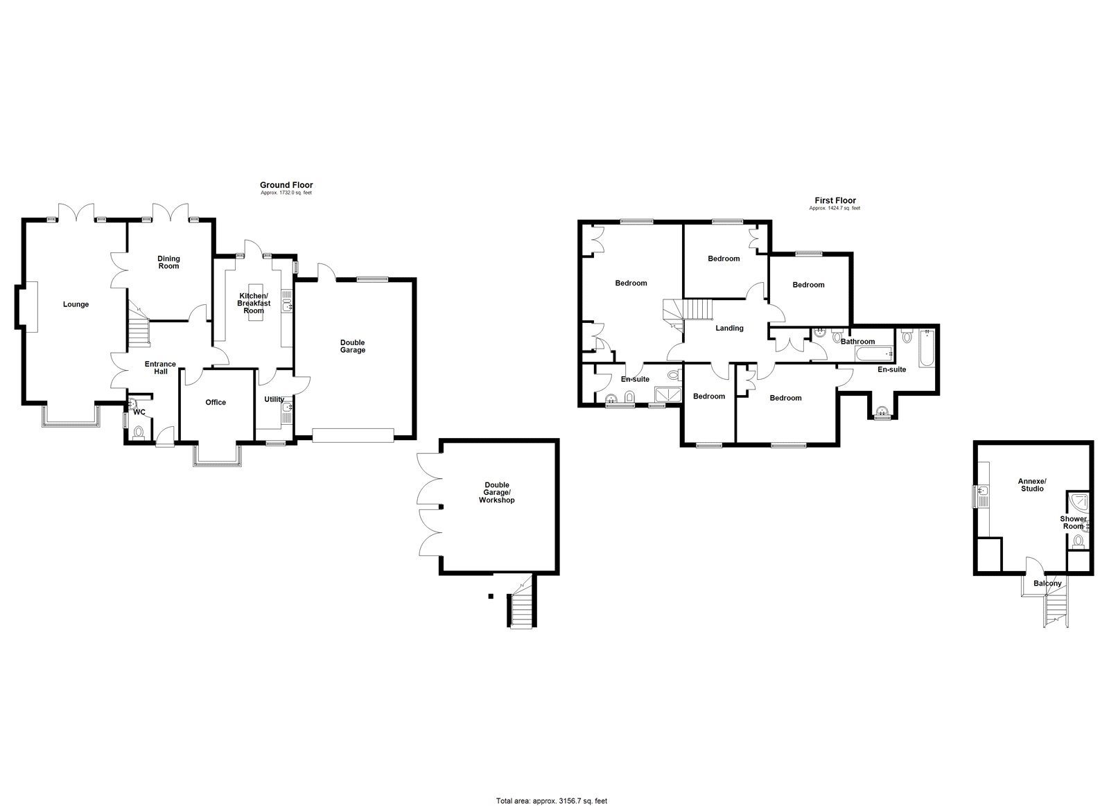
An individually 1992 built, five bedroom detached family home situated at the corner of a private road in a highly desirable area of Gravesend Occupying a substantial plot, this spacious property offers over 3,150 sq. ft. of internal accommodation, complete with a large driveway, double garage, and detached garage/workshop with annex/studio above.
While the property would benefit from modernisation, it presents an exceptional opportunity to create a dream home with ample scope to enhance and add value.
Accommodation Overview
Ground Floor
Welcoming entrance hall
Spacious lounge with dual aspect windows
Formal dining room
Generous kitchen/breakfast room
Utility room for added convenience
Front-facing office/study
Downstairs WC
Access to a large integral double garage
First Floor
Five well-proportioned bedrooms, two with en-suite bathrooms
Central landing
Family bathroom
Ideal for a growing family or for those needing guest accommodation
Detached Annex / Studio
Above the stuido second double garage/workshop
Includes open-plan studio space
Separate shower room
Private balcony overlooking the garden
Perfect as a home office, gym, guest suite, or rental opportunity
Exterior
Long private driveway with ample parking
Well-maintained front and rear gardens
Mature shrubs, lawn areas, and private borders
Sits at the end of a quiet, tree-lined cul-de-sac
Key Features
Approx. 3,157 sq. ft. total internal space
Quiet and exclusive location
Unique build with characterful Tudor-style frontage
Scope to extend or modernise (STPP)
Excellent potential for family living or multi-generational needs
Call today to view.
- Welcoming entrance hall
- Spacious lounge with dual aspect windows
- Formal dining room
- Generous kitchen/breakfast room
- Utility room for added convenience
- Front-facing office/study
- Downstairs WC
- Access to a large integral double garage
- Five well-proportioned bedrooms, two with en-suite bathrooms
- Central landing
- Family bathroom
- Detached Annex / Studio
- Separate shower room
- Perfect as a home office, gym, guest suite, or rental opportunity
Rooms
Ground Floor WC 1.96m x 0.94mLeaded light double glazed window to front. Low level WC. Panelled wash hand basin. Tiled floor. Coved ceiling. Radiator. Alarm controls.
Lounge 8.7m x 4.3mLeaded light double glazed window to front. Double glazed patio doors to garden. 2 Radiators. Brick fireplace with working fire. Coved ceiling.
Dining Room 4.2m x 3.56mDouble glazed French doors to garden. Carpet. Radiator. Coved ceiling.
Study 3.15m x 3.07mLeaded light double glazed bay window to front. Carpet. Radiator.
Kitchen 4.78m x 3.4mDouble glazed window to rear. Pine fitted wall and base units with tiled worktops. 1 1/2 bowl sink and drainer unit. Central island/ breakfast bar housing range cooker. Tiled floor. Coved ceiling. Space for appliances. Double radiator. Access to utility room.
Utility Room 3.05m x 1.57mLeaded light double glazed window to front. Fitted wall and base units with rolled top worksurfaces. Sink and drainer unit with mixer tap. Wall mounted boiler. Tiled floor.
LandingCarpet. Access to loft. Radiator. Built in airing cupboard.
Master Bedroom 5.92m x 4.34mDouble glazed window to rear. Carpet. Radiator. Fitted wardrobes. Door to en-suite.
En-Suite 3.7m x 1.68m2 x Leaded light double glazed window to front. Tiled shower cubicle.
2nd Bedroom 4.24m x 3.35mLeaded light double glazed window to front. Carpet. Radiator. Coved ceiling. Built in wardrobe cupboard.
En-Suite 4.06m x 2.7mLeaded light double glazed window to front. Panelled bath. Panelled wash hand basin. Low level WC. Extractor fan. Radiator. Shower.
3rd Bedroom 3.58m x 3.12mDouble glazed window to rear. Carpet. Radiator. Built in wardrobe cupboard.
4th Bedroom 3.45m x 3.02mDouble glazed window to rear. Carpet. Radiator.
5th Bedroom 3.38m x 2.77mLeaded light double glazed window to front. Carpet. Radiator. Coved ceiling.
Bathroom 4.65m x 1.5mSuite comprising panelled bath with mixer tap and shower attachment. Panelled wash hand basin. Low level WC. Access to loft space.
