Property Description
GUIDE PRICE £375,000-£400,000
Spacious five Bedroom Semi-Detached Home with Versatile Living Across Three Floors
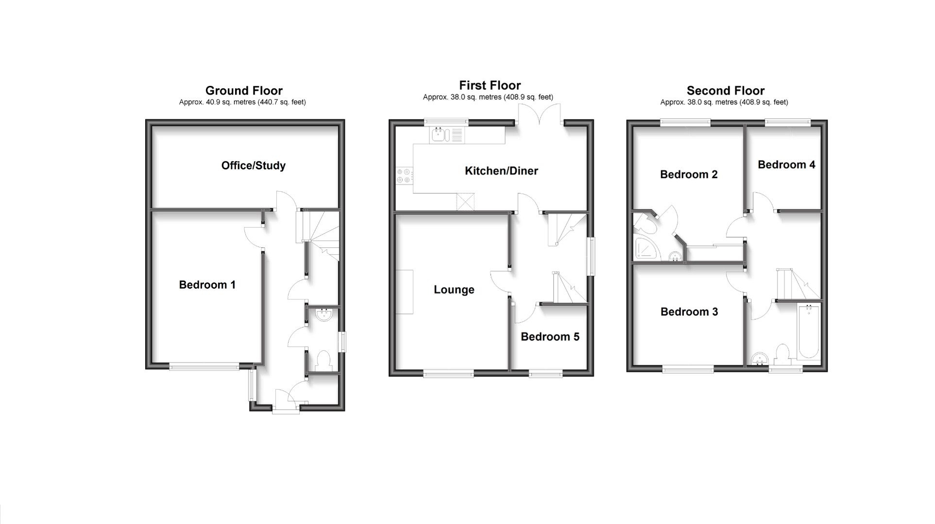
This beautifully presented five-bedroom semi-detached home is set across three well-planned floors, offering flexible accommodation ideal for modern family living.
As you enter the property, you are welcomed by a light and airy hallway complete with a cloakroom for added convenience. On the ground floor, you’ll find Bedroom 2, a generously sized double, along with an additional versatile room perfect as a study, playroom, or home gym depending on your lifestyle needs.
The first floor boasts a bright and inviting lounge, perfect for relaxing with family or entertaining guests. To the rear, a spacious kitchen/diner spans the width of the house, featuring French doors opening directly onto the garden, creating the ideal indoor-outdoor flow. This floor also includes Bedroom 5, which could alternatively be used as a playroom.
On the top floor, there are three further bedrooms. The master bedroom benefits from its own private en suite shower room, while the remaining bedrooms are served by the stylish family bathroom.
Externally, the property features a double driveway providing off-road parking, as well as a private rear garden, perfect for outdoor dining and family activities.
This home offers a fantastic balance of bedrooms and flexible living spaces, making it an excellent choice for growing families or those needing extra room for home working.
- 5 Bedroom Semi detached
- Double driveway
- Over 3 floors
- Popular location
- Must be viewed
- En-suite to master bedroom
