Property Description
** GUIDE PRICE £435,000 - £450,000 **
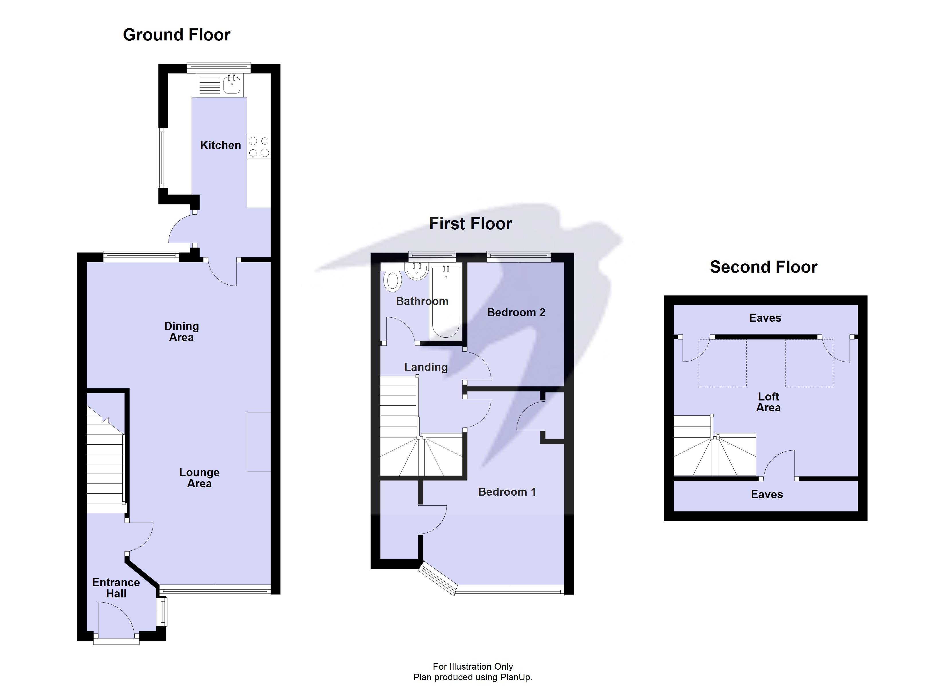
Situated on the popular Portland Avenue in Sidcup, this well-presented two-bedroom mid-terrace home is offered in modern condition throughout and is ideal for families, professionals, or first-time buyers alike.
The property features a driveway providing off-street parking for two vehicles and opens into a bright through lounge, offering excellent living and dining space. To the rear is an extended, contemporary kitchen, providing ample storage and workspace with direct access to the garden.
The rear garden is a real highlight, benefitting from a large detached garage to the rear complete with power and lighting, making it ideal for storage, a workshop, or potential conversion (STPP).
On the first floor are two well-proportioned bedrooms and a modern family bathroom. A further staircase leads to an additional loft area, currently used as a home office, offering versatile multi-purpose space and flooded with natural light via two Velux windows.
Conveniently located close to sought-after schools, local amenities, and excellent transport links, this property combines flexible living space with a desirable Sidcup location.
- Two Bedrooms
- Mid Terrace
- Additional Loft Area
- Off Street Parking For Two Cars
- Modern Kitchen & Bathroom
- Extended Kitchen
- Rear Garden
- Large Detached Garage
Rooms
Entrance HallDouble glazed entrance door to front, double glazed window to side, stairs to first floor, laminate flooring.
Lounge/Dining Room 6.76m x 3.86mDouble glazed half bay window to front, inset spotlights, understairs storage cupboard, two radiators, laminate flooring.
Kitchen 3.58m x 2.16mDouble glazed window to rear and side, double glazed door to side, inset spotlights, matching range of wall and base units incorporating cupboards, drawers and worktops, 1 1/2 bowl stainless steel sink unit with drainer and mixer tap, integrated oven, hob with extractor hood above, plumbed for washing machine and dishwasher, space for fridge freezer, laminate flooring.
First Floor Landing 2.51m x 1.73mStairs to second floor, carpet.
Bedroom One 4.1m x 3.89mDouble glazed window to front, inset spotlights, built in wardrobe, built in storage cupboard, radiator, carpet.
Bedroom Two 2.62m x 2.06mDouble glazed window to rear, radiator, carpet.
Bathroom 1.68m x 1.65mDouble glazed frosted window to rear, panelled bath with shower over and glass shower screen door, pedestal wash hand basin, low level W/C with storage cupboard above, chrome heated towel rail, tiled walls, vinyl flooring.
Second Floor LandingCarpet.
Loft Area 3.96m x 2.87mTwo velux windows to rear, inset spotlights, access to eaves storage, carpet.
Rear GardenPaved patio, mainly laid to lawn with paving blocks leading to garage.
GarageDetached to rear, up and over door with power and light, rear access (Rear access is subject to legal verification).
Front GardenPaved for off street parking.
