Property Description
*****Guide price £475,000-£500,000 ****
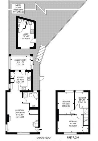
Nestled in the ever popular Progress Estate, this charming terraced house boasts three bedrooms, perfect for a growing family or those in need of extra space. The property features a well-maintained garden, ideal for relaxing and entertaining guests, as well as a conservatory that floods the interiors with natural light. Additionally, the outbuilding provides ample space for many uses.
Conveniently situated close to local amenities, schools, and transport links, this property offers both comfort and convenience. With the added benefit of being chain-free, this is a fantastic opportunity to secure your dream home without any delays.
Don't miss out on the chance to make this property your own and enjoy all it has to offer. Contact us today to arrange a viewing and experience the charm of this lovely home firsthand.
- Chain free
- Progress Estate
- Three bedrooms
- Outbuilding
- Extended
- Triple glazing
Rooms
Entrance HallWooden front door to side.
Living Room 4.98m x 4.62mTriple Glazed window to front, tiled flooring, radiator.
Bathroom (ground floor) 2.54m x 2.4mTriple Glazed window to rear, tiled flooring, Low level WC, wash hand basin, a tiled side bath, sepratae shower cubicle and chrome style heated towel rail.
Kitchen 3.35m x 3.07mTriple glazed window to rear, double glazed patio doors to rear, wall and base units with work surfaces above, stainless steel sink and drainer, extractor hood, ,and fridge/freezer, part tiled walls, tiled flooring.
LandingSolid oak flooring, loft access.
Bedroom One 2.97m x 3.84mTriple Glazed window to front, solid oak flooring, radiator.
Bedroom Two 2.64m x 3.58mTriple Glazed window to rear, solid oak flooring, radiator.
Bedroom Three 2.06m x 2.03mTriple Glazed window to rear, solid oak flooring, radiator.
GardenWooden steps leading to artificial grass area leading onto Outbuilding to rear.
OutbuildingDouble Glazed windows to side, tiled flooring, wooden door, shower room fitted with low level WC, wash hand basin and separate shower cubicle.
