Property Description
Stunning Six-Bedroom Detached Home with Stables in High Halstow.
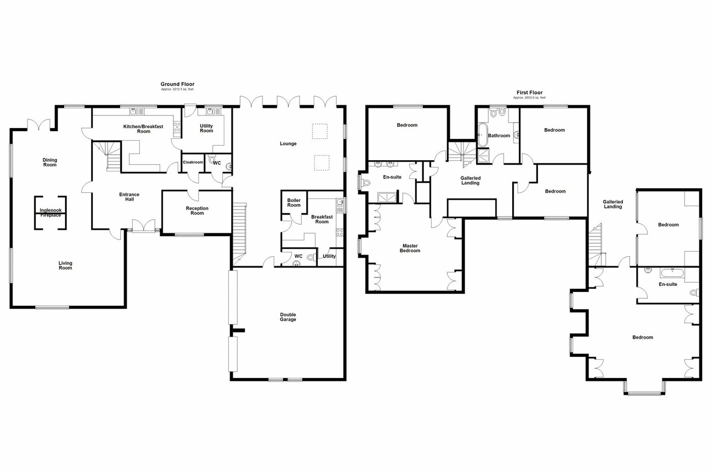
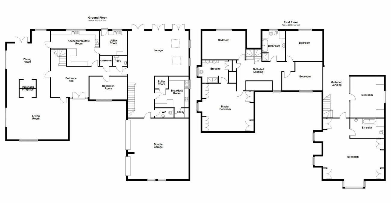
Set within approximately 1.38 acres of private grounds, this impressive six-bedroom detached residence offers over 5,816 sq ft of beautifully designed living space, combining luxurious rural living with superb practicality.
Accessed via a private gated entrance, the property boasts ample off-street parking and a double garage, offering both convenience and privacy in a highly sought-after countryside location.
Internally, the home offers exceptional versatility with four spacious reception rooms, two fully fitted kitchens, and six generous bedrooms. There are three bathrooms, including two en-suites, as well as two additional downstairs WCs, catering perfectly for large or multi-generational families.
Ideal for equestrian enthusiasts, the property also includes well-maintained stables, with ample land and storage potential.
Located in the peaceful village of High Halstowe, the property offers easy access to the A2/M2, making it perfectly positioned for commuters seeking the balance of countryside living with excellent transport links.
A rare opportunity to acquire a substantial and private home in one of Kent’s most desirable rural locations — early viewing is strongly recommended.
- Approximately 5816.3 sqaure feet
- Approximately sat on 1.38 acre plot
- Private gated entrance
- Ample off street parking
- Double garage
- Six bedrooms
- Four reception rooms
- Easy access to A2/M2
Rooms
HallwayCarpet, entrance door to front & window.
Lounge 7.54m x 5.56mCarpet, double glazed windows to front & side, wooden beams on ceiling, brick based fire place, radiator .
Dining Room 6.43m x 6.3mWood flooring, brick based fire place, double glazed double doors leading to rear garden.
Kitchen 6m x 4.34mWood flooring, wall to base units with roll top work surface over, free standing cooker, sink drainer with mixer tap, double glazed window to rear, dishwasher, fridge freezer.
Ground floor w/c 1.65m x 1.45mTiled flooring, radiator, low level w/c, partly tiled walls.
Kitchen Two 4.2m x 3.76mTiled flooring, wall to base units with roll top work surface over , electric oven with hob & extractor fan, double glazed window to side, dish washer.
Reception Room 7.62m x 7mWood flooring, double glazed window & french doors leading to rear garden, sky light.
Study/Office 5.08m x 2.84mCarpet, double glazed window to front, radiator, wood beams on celing.
Utility Room 3.4m x 3.12mTiled flooring ,double glazed window to rear, radiator, stable door leading to garden, built in radiator, space for appliances.
Ground floor w/c 2.29m x 1.14mTiled flooring, low level w/c, radiator, basin with mixer tap.
LandingCarpet.
Bedroom One 7.5m x 5.82mCarpet, built in wardrobes, radiator, door to ensuite, double glazed window to front & side.
Ensuite Bathroom 4.06m x 2.36mCarpet, double glazed window to side, shower cubicle, low level w/c, basin with mixer tap, storage cupboard.
Bedroom Two 4.11m x 5.1mCarpet, double glazed window to side, built in dressing & fitted wardrobes.
Ensuite BathroomCarpet, panelled bath with mixer taps, radiator, low level w/c, wall mounted basin with mixer tap, partly tiled walls.
Bedroom Three 5.23m x 3.5mCarpet, double glazed window to front, radiator.
Bedroom Four 6.88m x 4.98mCarpet, built in wardrobes, radiator.
Bedroom Five 4.65m x 3.76mCarpet, double glazed window to front, radiator,
Bathroom 3.73m x 2.95mTiled flooring, double glazed window to front, pannelled bath with shower head over, basin with mixer tap, low level w/c, fully tiled walls.
Garage/parking 7.77m x 7.54mElectric up and over doors, power supply.
