Property Description
An Exceptional Family Home on Prestigious Singlewell Road – Opposite the Golf Course
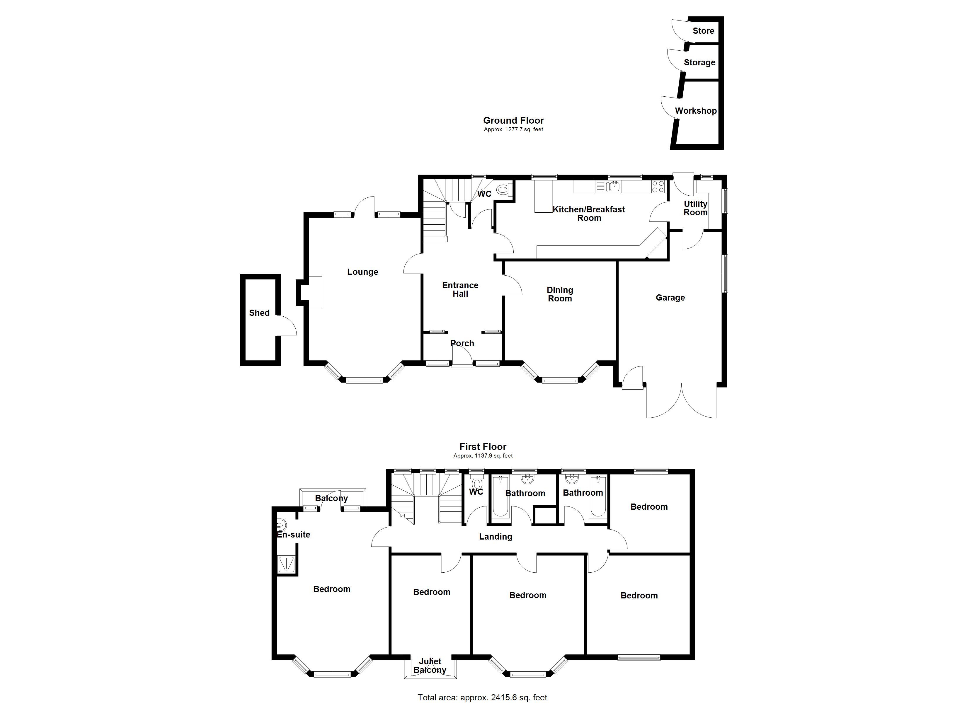
Positioned on one of Gravesend’s most desirable roads, this impressive five-bedroom detached home enjoys a commanding position directly opposite Mid-Kent Golf Club. Occupying a wide plot with a stunning landscaped rear garden, this home offers both space and character in abundance.
Internally, the property features generously proportioned living spaces including three elegant reception rooms, a bright and spacious lounge with bay windows, a formal dining room, and a versatile study or additional bedroom. The well-equipped kitchen includes integrated appliances and leads into a separate utility room for added convenience.
Upstairs, the home continues to impress. Bedroom Three opens onto a unique front-facing balcony — the perfect spot to enjoy morning sun and golf course views. The principal bedroom benefits from a private roof terrace overlooking the expansive rear garden — ideal for quiet evening relaxation. All five bedrooms are well-sized, with a family bathroom, additional shower room, and en-suite facilities serving the master suite.
Outside, the property boasts a large landscaped rear garden measuring approximately 80ft in length and 50ft in width, offering a wonderful space for entertaining, gardening or family activities. The front garden provides driveway parking, a private garage, and a generous frontage that enhances the property’s curb appeal.
Key Features:
Five bedrooms, three reception rooms, two bathrooms
Unique balcony with golf course views and rear roof terrace
Wide plot with 80ft x 50ft landscaped rear garden
Garage and driveway parking
Generous entrance hall and wide first-floor landing
Prestigious location opposite Mid-Kent Golf Club
Excellent access to local schools, A2/M25 and Gravesend town centre
This is a rare opportunity to acquire a substantial home on one of the area's finest roads, offering charm, space and the potential to tailor to your lifestyle.
- Prestigious Singlewell Road Location
- 5 Bedrooms
- Garage and Driveway
- Balcony and Roof Terrace
- Large Plot
- Views of the Golf Course
- Sold with No Forward Chain
- Abundance of Opportunity
Rooms
Porch 3.05m x 1.37mWood floor. Radiator to side. 2 x single glazed stain glass windows to front. Opening into hall.
Hallway 4.42m x 3.02mWood floor. Single glazed stain glass window to rear. Radiator to side. Stairs to first floor.
Ground Floor WC 1.78m x 1.6mCarpet. Single glazed frosted window to rear. Low level WC. Pedestal basin with wrap around storage.
Lounge 4.24m x 5.97mCarpet. Single glazed bay window to front. 2 x Radiators to font. Radiator to side. 2 x Single glazed stain glass windows to side. Single glazed door to garden.
Dining Room 4.45m x 4.22mCarpet. Single glazed bay window to front. Radiator to front.
Kitchen 5.7m x 3mTiled floor. 2 x Single glazed windows to rear. Radiator to front and rear. Wall and base level units with tiled worksurface over and backsplash. Sink and drainer unit with mixer tap over. Integrated double oven, washing machine, and electric hob with extractor over.
Utility Room 3.23m x 1.83mTiled floor. Radiator to front. Door to garage. Wall and base level units with worksurface over. Double glazed frosted window to side.
Landing 8.81m x 2.97mCarpet. Radiator. 3 x Single glazed stain glass windows. Loft hatch. Airing cupboard.
Master Bedroom 6.27m x 4.22mCarpet. Single glazed bay window to front. Radiator to front. Built in wardrobes. Single glazed door leading to balcony overlooking garden. Pedestal basin with storage and tiled backsplash. Shower with tiled surround. 2 x spotlights over.
1st Bathroom 2.29m x 1.63mCarpet. Single glazed window to rear. Tiled walls. Pedestal basin. Panelled bath with shower over. Radiator to side.
2nd Bedroom 4.42m x 4.24mCarpet. Double glazed window to front. Radiator to front. Wall mounted sink with tiled backsplash.
3rd Bedroom 3.76m x 3mCarpet. Radiator to front. Single glazed door to front balcony overlooking road and golf course.
4th Bedroom 3.9m x 3.05mCarpet. Radiator to front. Single glazed window to front.
5th Bedroom 3.73m x 3.68mCarpet. Single glazed window to rear. Radiator to rear.
2nd Bathroom 1.93m x 2.1mCarpet. Single glazed window to rear. Pedestal basin. Panelled bath with shower over. Radiator to side. Mirrored storage cupboard.
Separate WC 1.93m x 0.86mCarpet. Single glazed window to rear. Low level WC.
