Property Description
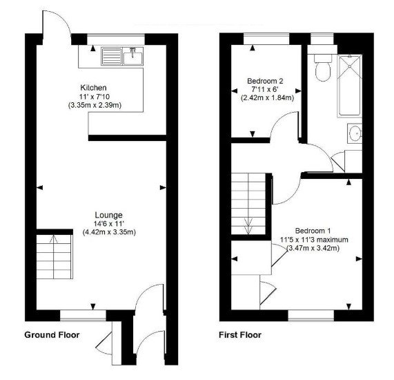
This two bedroom end of terrace home is tucked away in a quiet cul de sac, offering a peaceful setting while remaining conveniently close to everything you need.
Ideally located within walking distance to local shops, the town centre, train stations, schools and a range of other amenities, the property is perfectly suited to modern living. The accommodation provides comfortable and practical living space, ideal for a variety of buyers.
Externally, the home benefits from allocated parking for two cars, adding to its convenience and appeal. Offered with no onward chain, this property presents an excellent opportunity for first time buyers, buy to let investors, or anyone seeking a straightforward and speedy purchase.
- NO ONWARD CHAIN!
- Two Bedroom
- End Of Terrace
- Parking for Two Cars
- Walking Distance From Stations
- Close to Local Amenities
