Property Description
Guide Price £325,000 - £350,000
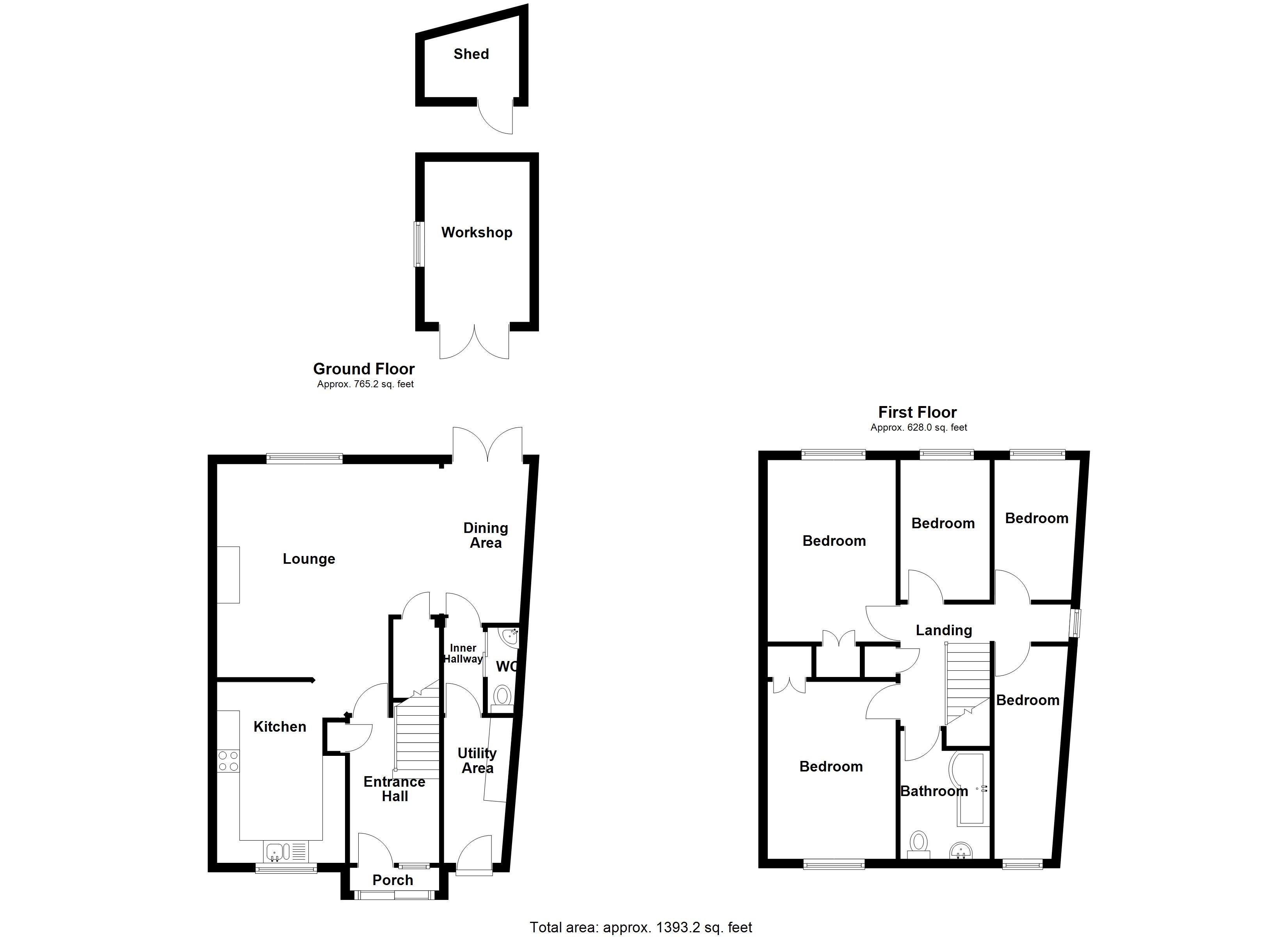
Spacious 5-Bedroom Home on Wakeley Road – No Forward Chain!
Perfectly situated close to all local amenities, this generously sized family home offers five well-proportioned bedrooms, a bright and airy living space, and a private garden. With no forward chain
- 1393.2 Square Feet
- 0.4 Miles to Rainham Station
- 0.8 Miles to Rainham Highstreet
- Excellent Local Schools
- Double Story Extended to Side
- No Forward Chain
- Viewing Highly Recommended
Rooms
Entrance 1.96m x 1.04mDouble glazed door to front. Laminate flooring.
Entrance Hallway 3.48m x 1.88mDouble glazed door to front. Storage cupboard. Stairs to first floor. Radiator.
Cloakroom 1.6m x 0.69mLow level WC. Wash hand basin. Laminate flooring.
Lounge 6.86m x 5.6mDouble glazed door and window to rear. Storage cupboard. Laminate flooring.
Kitchen 4.2m x 2.82mDouble glazed window to front. Range of wall and base units with worksurface over. Oven with gas hob. Integrated dishwasher. Tiled flooring.
Utility Room 4.14m x 1.37mDouble glazed window to rear. Carpet.
Landing 3.78m x 2.8mAccess to part boarded loft via ladder. Carpet. Radiator.
Bedroom One 4.06m x 3.25mDouble glazed window to rear. Laminate flooring. Radiator.
Bedroom Two 4.06m x 2.87mDouble glazed window to front. Fitted storage cupboard. Laminate flooring. Radiator.
Bedroom Three 4.62m x 1.6mDouble glazed window to front. Carpet. Radiator.
Bedroom Four 3.15m x 1.7mDouble glazed window to rear. Carpet. Radiator.
Bedroom Five 3.23m x 1.85mDouble glazed window to rear. Carpet. Radiator.
Bathroom 3.05m x 1.83mDouble glazed window to front. Low level WC. Wash hand basin. Rear access. Shed. North facing. Access to garage.
GarageEn bloc.
