Property Description
Guide Price £550,000 - £575,000 Robinson Jackson are delighted to market this attractive four bedroom semi detached chalet style home on the ever popular Wentworth Drive that offers generously proportioned and flexible accommodation ideal for families.
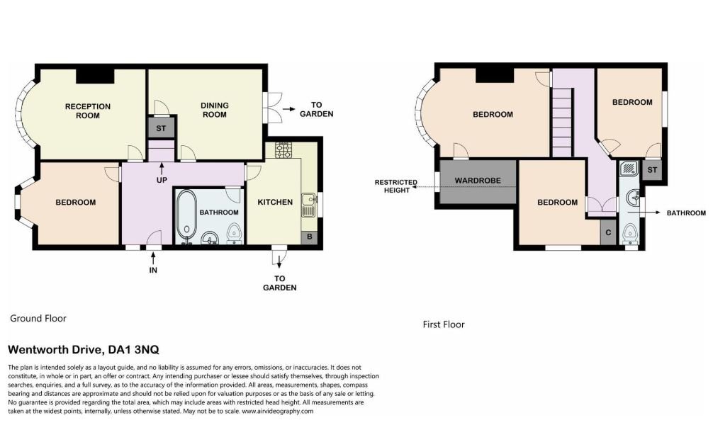
The first floor features three well sized bedrooms along with a convenient shower room, while the ground floor provides a fourth bedroom and a family bathroom, perfect for guests or those seeking single level living. Two comfortable reception rooms offer separate spaces for relaxation and dining, complemented by a separate kitchen overlooking the rear garden.
Beautifully positioned in a sought after residential area, the property is ideally located for Crayford Station, just approximately 0.47 miles away. Families will also appreciate the excellent local schooling options. The home sits perfectly for Wentworth Primary School and falls within reach of the highly regarded Wilmington Grammar Schools and Dartford Grammar Schools, making it a superb choice for those prioritising education.
With its versatile layout, desirable location and strong transport / school connections, this property presents an exceptional opportunity for families seeking a well appointed home in Dartford.
- Versatile Living Accommodation With Ground Floor Bedroom And Bathroom.
- Three Double Bedrooms To The First Floor With First Floor Shower Room.
- Ideally Located For Popular Primary, Secondary and Grammar Schools.
- Walking Distance To Crayford Station. (Zone 6)
- Very Well Presented Family Home.
- Viewing Comes Highly Recommended.
