Property Description
This thoughtfully extended semi-detached family home has been beautifully renovated throughout, offering spacious and flexible accommodation with the potential for further extension, subject to planning consents. It benefits from a generous, sunny rear garden that's been thoughtfully landscaped for easy enjoyment, along with a garage and large driveway accommodating multiple vehicles. Just a short stroll away, you'll find the sought-after Loose Primary School, local shops, and the doorstep of the picturesque Loose Valley conservation area. Inside, the beautifully presented spaces include a useful study that could easily serve as a fourth bedroom.
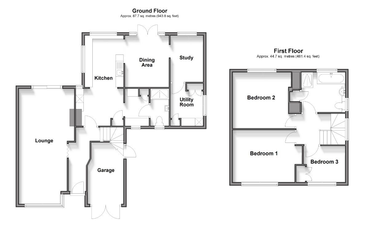
The welcoming entrance hall leads into the heart of the home. The generous lounge provides a light-filled space for relaxation, flowing seamlessly into the well-equipped kitchen, which opens to a cozy dining area ideal for family meals. A versatile study offers a quiet retreat for work or play, while the practical utility room and adjoining pantry keep everything organised. A convenient shower room completes the ground floor for added everyday ease.
The landing guides you to three well-proportioned bedrooms, each designed for comfort—the principal bedroom is particularly spacious, with ample room for fitted storage. The family bathroom, with its modern fixtures, serves the household effortlessly, ensuring a serene space to unwind after a busy day.
- SOLD BY ROBINSON MICHAEL & JACKSON
- Three/Four Bedrooms
- Semi-detached
- Large Corner Plot With Further Potential to Extend (STPP)
- Beautifully Renovated Throughout
- Expansive Sunny Landscaped Garden
- Abundance Of Parking For Multiple Vehicles
- Garage
- Prime Location
- Scenic Surroundings
Rooms
Entrance HallDoor, stairs
Lounge 7.62m x 4.27mWindow to the front, sliding doors leading into the garden
Kitchen 6.1m x 2.46mWindow to the rear and side, space for white goods
Dining Room 3.68m x 2.46mOpen planned, double patio doors leading into the garden
Study 3.05m x 2.13mWindow to the rear, door
Utility Room 2.77m x 2.13mWindow to the side, door, built in cupboards
Pantry 2.16m x 1.52mShower Room 2.16m x 0.91mWindow to the front, walk in shower, basin, WC, door
LandingWindow to the side, stairs
Bedroom 1 3.66m x 3.07mWindow to the front, door
Bedroom 2 3.66m x 3.35mWindow to the rear, door
Bedroom 3 2.46m x 2.13mWindow to the front, storage cupboard, door
Bathroom 2.46m x 2.16mWindow to the rear, walk in shower, bath, basin, WC, door
GarageDoor to the side, double doors
Driveway Front and Rear Gardens
