Property Description
This beautifully presented three-bedroom detached house on Whiting Avenue, Ebbsfleet Cross, Greenhithe offers modern living in a highly sought-after location. Built in 2023, it benefits from an impressive 8-year NHBC guarantee and includes off-street parking for three cars plus an EV charging point. Inside, the home features stylish Amtico flooring, a contemporary family bathroom, an en-suite to the master bedroom and a convenient downstairs WC. Excellent transport links are close by, with Greenhithe station providing frequent services to London, alongside easy access to the A2 and M25. Families will appreciate the selection of nearby schools and parks, while Bluewater Shopping Centre, offering extensive shops, restaurants and leisure options, is just minutes away. This is an ideal property for those seeking comfort, convenience and a modern lifestyle.
- Three Bedroom Detached House
- Built 2023
- 8 Year NHBC Guarantee Remaining
- Off Street Parking for 3 Cars
- EV Charging Point
- Family Bathroom, En-Suite & Downstairs WC
- Amtico Flooring
- Close to Bluewater Shopping Centre
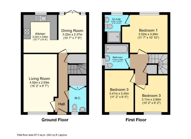
Rooms
Entrance Hall:Radiator. Under stairs storage cupboard. Herringbone Amtico flooring. Carpeted stairs to first floor.
Cloakroom: 1.88m x 1.42mFrosted double glazed window to front. Low level WC. Wash hand basin. Radiator. Double storage cupboard housing tumble dryer. Part tiled walls. Tiled flooring.
Lounge: 4.93m x 2.92mDouble glazed window to front. Custom built media wall with integrated lighting, electric fire and storage. Radiator. Carpet.
Kitchen/Dining: 5.6m x 3.23mDouble glazed window to rear. Double glazed patio doors to rear. Range of matching wall and base units with complementary work surface over and breakfast bar. Stainless steel sink with drainer. Integrated electric oven, gas hob and extractor. Integrated fridge freezer. Space for dishwasher. Plumbed for washing machine. Cupboard housing boiler. Two radiators. TV point. Spotlights. Herringbone Amtico flooring.
Landing:Storage cupboard. Loft access. Carpet.
Bedroom One: 4.11m x 3.3mDouble glazed window to rear. Radiator. Carpet.
Ensuite: 2.34m x 1.98mFrosted double glazed window to rear. Low level WC. Pedestal wash hand basin. Shower cubicle. Part tiled walls. Tiled flooring. Extractor fan.
Bedroom Two: 3.4m x 2.44mDouble glazed window to front. Radiator. Carpet.
Bedroom Three: 3.1m x 2.8mDouble glazed window to front. Radiator. Carpet.
Bathroom: 2.3m x 2mFrosted double glazed window to side. Low level WC. Wash hand basin. Panelled bath with shower over. Heated towel rail. Part tiled walls. Tiled flooring. Extractor fan.
