Property Description
CHAIN FREE
£630,000-£650,000
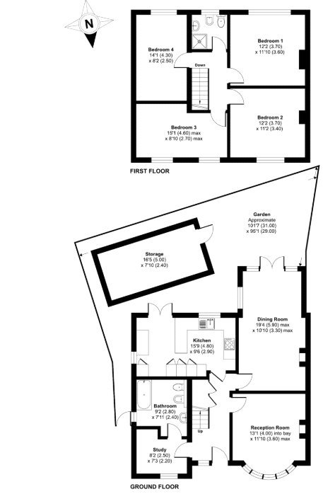
Set on a quiet cul-de-sac in Bexleyheath, this extended four-bedroom semi-detached home offers spacious and versatile living, ideal for growing families. Immaculately maintained and bathed in natural light, the property boasts a generous and flexible layout designed with modern family life in mind.
The ground floor features a welcoming reception room, a large dining area perfect for family gatherings and entertaining, and a thoughtfully designed kitchen with ample storage and workspace. A versatile additional room on this level can serve as a home office, playroom, or guest bedroom, complemented by a convenient downstairs bathroom.
Upstairs, you’ll find four genuine double bedrooms and a well-proportioned family shower room, offering ample space and comfort for all.
Externally, the property benefits from off-street parking to the front and a stunning 100ft south-facing rear garden—backing directly onto the historic gardens of the William Morris Red House, providing a truly unique and picturesque setting.
- A secluded, well-stocked 100ft south-facing garden
- Ample off-street parking
- Flexible ground floor reception space, ideal for a home office or guest room
- Easy access to Bexleyheath’s shops, schools, and transport links
