Property Description
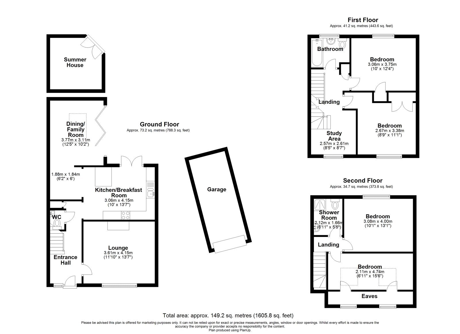
Situated in the heart of the ever-popular village of Hoo, this deceptively spacious semi-detached home offers approximately 1,606 sq ft of flexible living space arranged over three floors – perfect for growing families or those needing extra room to work from home.
The bright and welcoming entrance hall leads to a seperate lounge, modern kitchen, a generous living/dining room with bifold doors and access to the garden.
The first floor offers two well-proportioned bedrooms and a contemporary family bathroom, while the top floor has two bedrooms and shower room.
Outside, the property really shines: a block-paved driveway and detached garage provide ample off-street parking, while the generous rear garden is a particular highlight. Laid mainly to lawn with a large patio area, it enjoys a sunny aspect and includes a superb insulated summer house – currently used as a home gym/bar but equally suited as a teenager’s den, games room or additional home office.
Further benefits include walking distance to popular local schools, no onward chain, and a highly sought-after village location with amenities and countryside walks on the doorstep.
- Approx. 1,606 sq ft over three floors
- Four bedrooms
- Home office/study (to first floor)
- Downstairs cloakroom
- Driveway & garage
- Summer House
- Generous, sunny rear garden
- Walking distance to Hoo’s popular primary & secondary schools
- Sought-after village location with shops, amenities & countryside walks on the doorstep
- Offered with no onward chain for a swift move
