Property Description
Guide Price £145,000 - £165,000
Robinson Michael and Jackson are delighted to offer this well presented two bedroom flat close to Medway Hospital and Gillingham Train Station offered with no forward chain!
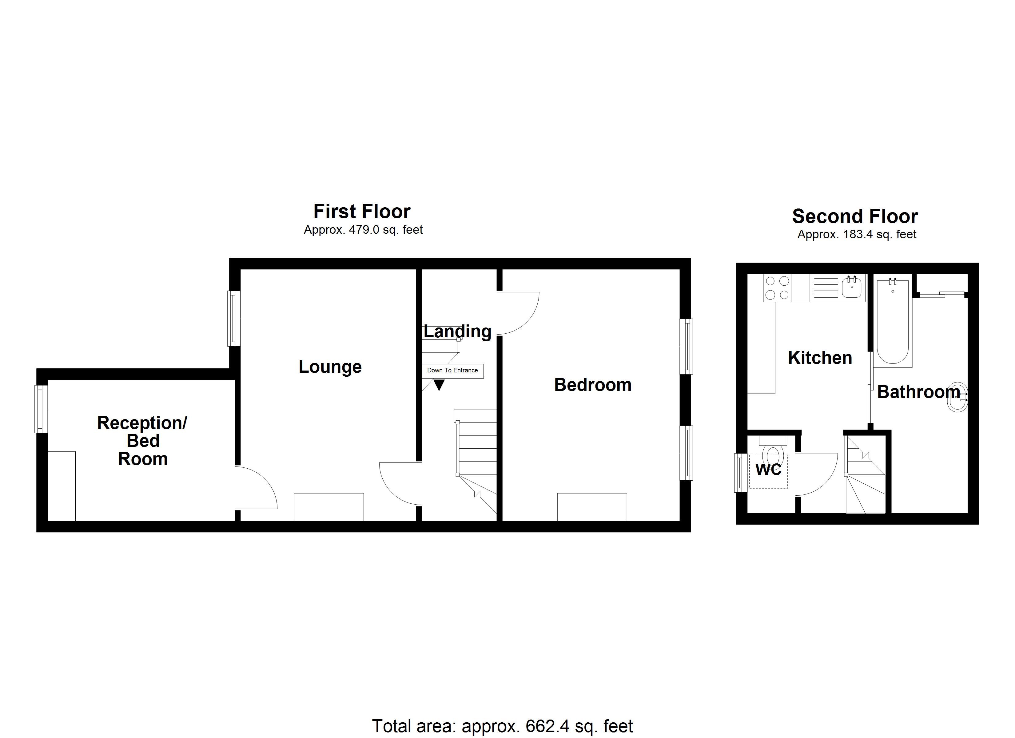
- 662.4 Square Feet
- 0.5 Miles to Gillingham Station
- 0.6 Miles to Medway Maritime Hospital
- No Forward Chain
- Modern Internal Condition
- Viewing Highly Recommended
Rooms
Entrance Hall 2.54m x 1.4mDouble glazed door to side. Stairs to first floor. Carpet. Radiator.
Lounge 4.5m x 3.15mDouble glazed window to rear. Decorative fire surround. Carpet. Radiator.
Kitchen 2.77m x 2.13mDouble glazed window to rear. Range of wall and base units with worksurface over. Oven and gas hob. Space for appliances.
Landing 4.42m x 1.4mDouble glazed window to front. Stairs to second floor. Radiator.
Bedroom One 4.37m x 3.18mTwo double glazed window to side. Fitted storage cupboard. Carpet. Radiator.
Bedroom Two 3.1m x 2.46mDouble glazed window to rear. Decorative fire surround. Carpet. Radiator.
Bathroom 1.4m x 1.24mLow level WC. Vanity wash hand basin. Bath with shower attachment. Shower. Tiled walls and flooring.
Separate WC 1.52m x 0.76mLow level WC. Vanity wash hand basin.
