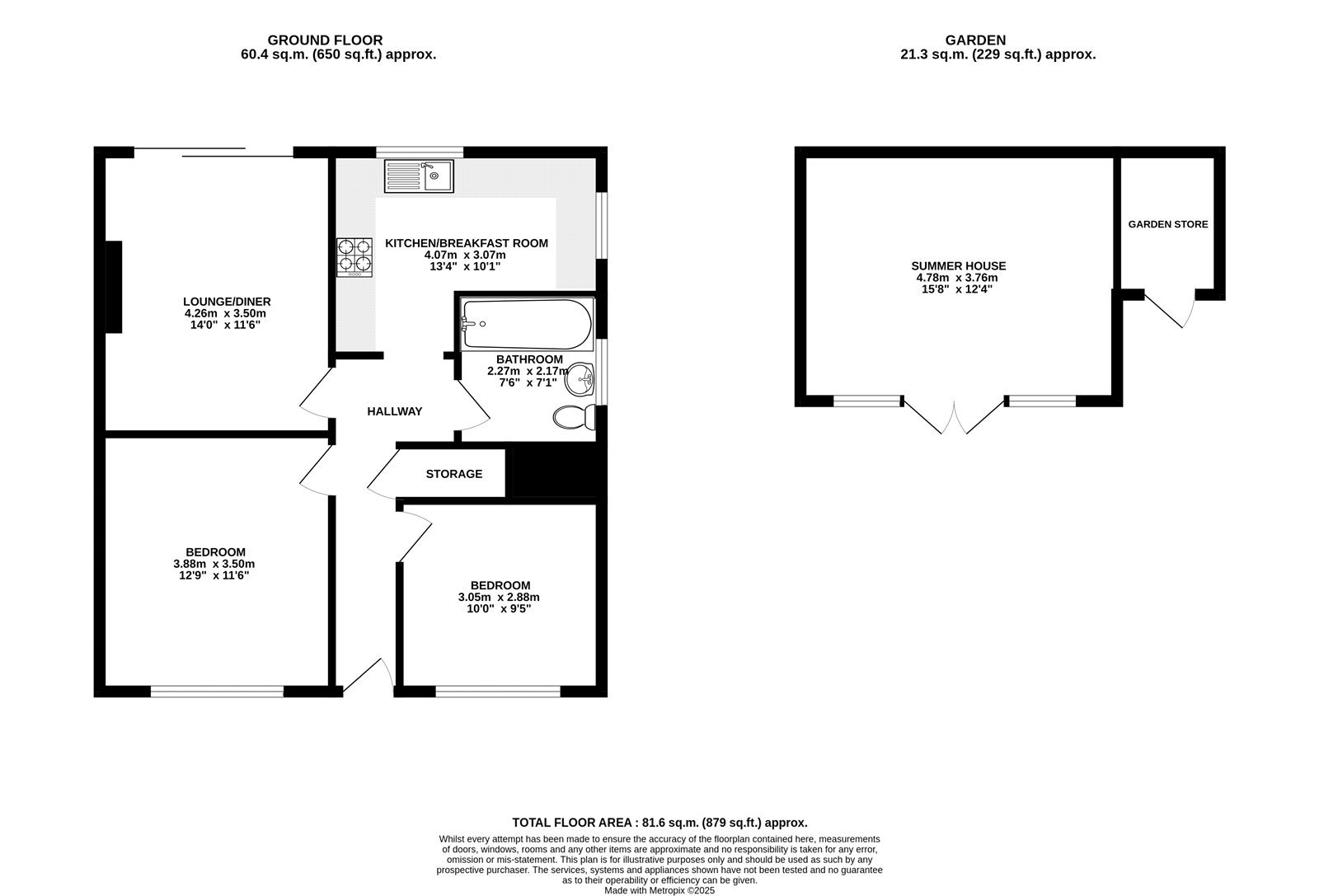
Property Description
Located just 0.7 Miles from Swanley station which offers fast services to London Bridge, Charing Cross, Victoria and Blackfriars is this fabulous ground floor maisonette. Benefitting from front garden, private driveway and rear garden with summer house and garden store. Inside you will find 2 great size double bedrooms, family bathroom, lounge/diner and well proportioned kitchen/breakfast room. If you are looking for a turnkey home within walking distance to a station look no further.
- Ground Floor Maisonette
- 2 Double Bedrooms
- Lounge/Diner
- Kitchen/Breakfast Room
- Private Garden with Summer House
- Private Off Street Parking
- 0.7 Miles to Station
Rooms
Entrance HallDouble glazed door to front. Provides access to all rooms. Large storage cupboard. Radiator.
Lounge/Dining Room 4.26m x 3.5mDouble glazed sliding patio doors to rear. Radiator.
Kitchen 4.07m x 3.07mDouble glazed windows to rear and side. Range of matching wall and base cabinets with countertop over with inset sink/drainer. Space for cooker, fridge/freezer and washing machine.
Bedroom One 3.88m x 3.5mDouble glazed window to front. Radiator.
Bedroom Two 3.05m x 2.88mDouble glazed window to front. Radiator.
Family BathroomOpaque double glazed window to side. Enclosed panelled bath with glass screen and shower over. Vanity wash basin and wc suite. Heated towel rail.
