Property Description
OFFERS IN EXCESS OF £180,000
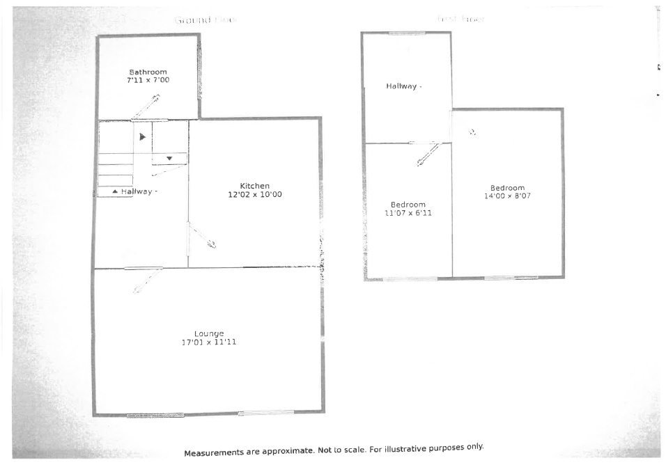
This TWO BEDROOM APARTMENT set over THREE FLOORS is situated in a beautiful PERIOD BUILDING in the heart of Gravesend town centre within WALKING DISTANCE TO THE GRAVESEND MAIN LINE STATION and offers NO CHAIN. The SPACIOUS ACCOMMODATION which has been WELL DECORATED comprises of a MODERN FITTED KITCHEN with SPACE FOR A DINING TABLE, A MODERN BATHROOM with BATH AND SHOWER UNIT OVER, A SPACIOUS LOUNGE and TWO GOOD SIZE BEDROOMS. This CHARMING property is rarely available property must be viewed internally.
- GUIDE PRICE £210,000 - £230,000
- DISCLOSURE - These Are Old Photographs
- No Forward Chain
- Fitted Kitchen
- Walking Distance To Train Station
- Period Building
- Set Over Three Floors
- Sash Windows
Rooms
Lounge: 5.2m x 3.63mFour double glazed sash windows to front. Coved and textured ceiling. Picture raiol. Built-in gas coal effect fire with marble hearth. Radiator. Laminate flooring.
Kitchen Diner: 3.7m x 3.05mDouble glazed window to rear. Wall and base units with work surface over. Built-in oven and hob with extractor hood over. Sink and drainer unit with mixer tap. Tiled backsplash. Space and plumbing for free standing washing machine. Space for freestanding fridge. Radiator. Large floor to ceiling built-in cupboard. Laminate wood flooring.
Bedroom 1: 4.27m x 2.62mDouble glazed Sash window to front. Radiator. Wood flooring. Built-in fireplace. Loft hatch. Carpet.
Bedroom 2: 3.53m x 2.1mDouble glazed window to front. Radiator. Carpet.
Bathroom: 2.41m x 2.13mSingle glazed window to rear. Suite comprising panelled bath with shower over. Wash hand basin. Low level w.c. Tiled walls. Tiled flooring.
