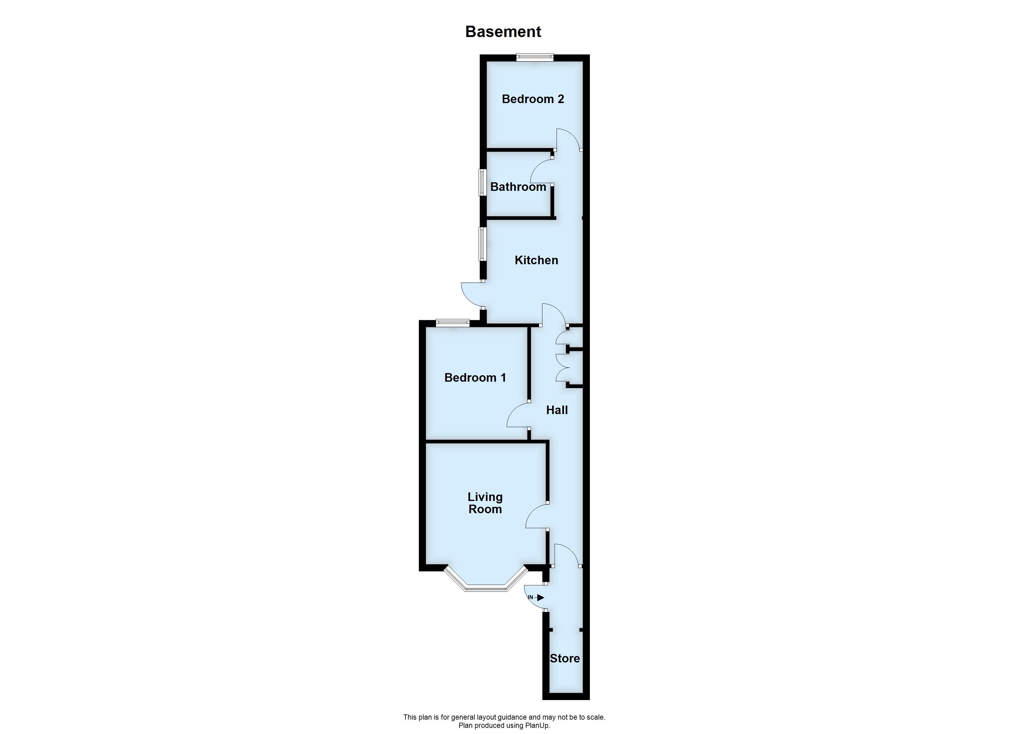
Property Description
*** Guide Price £300,000 - £325,000 ***
A spacious and well presented two bedroom lower ground floor maisonette, with its own private garden within minutes of Plumstead mainline station and high street.
- 14' Living Room
- No Service Charge
- Spacious Entrance Hall and Porch
- 11' Principal Bedroom
- Modern Fitted Bathroom
- Private Rear Garden
Rooms
Entrance Porch:Tiled flooring, storage cupboard.
Entrance Hall:Laminate flooring, range of built in cupboards.
Living Room: 4.32m x 3.58mLaminate flooring, double gas fire place. Double glazed window.
Bedroom 1: 3.38m x 3.1mLaminate flooring, double glazed window.
Kitchen: 2.82m x 2.87mTiled flooring, double glazed window, double glazed door to garden. Fitted with a range of matching wall and base units with complementary work surfaces. Integrated fridge/freezer, built in electric oven and gas hob with filter hood.
Hallway:Laminate flooring, inset lighting.
Bedroom 2: 2.87m x 2.54mLaminate flooring, double glazed window.
Bathroom:Tiled floor, tiled walls, frosted double glazed window, towel rail. Fitted with a three piece suite comprising a panelled bath, vanity wash hand basin and low level WC with enclosed cistern.
